Volksschule Angedair
Die hundert Jahre alte, denkmalgeschützte Volksschule mitten im Zentrum der Tiroler Bezirkshauptstadt Landeck brauchte dringend ein Update: viel mehr Platz für die SchülerInnen, größere Transparenz und eine neue Raumorganisation, die zeitgemäße Lehrmethoden möglich macht.
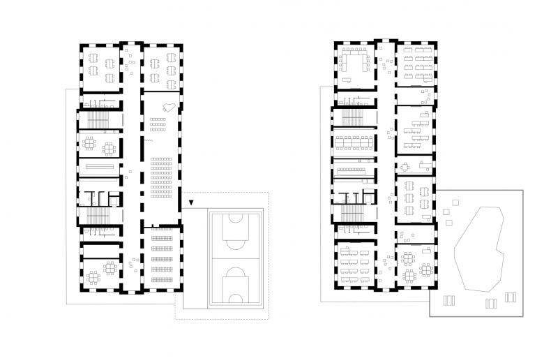
Wir haben die erhaltenswerte Bausubstanz saniert, einen Teil abgerissen und in die entstehende Lücke einen neuen Klassentrakt gestellt. Unser Zubau im Schulhof beherbergt eine versenkte Turnhalle, die neue Aula und am Dach oben drauf für die Pausen eine großzügige Terrasse. Der Haupteingang befindet sich in der verglasten Aula, die dem Neubau den Anschein eines schwebenden Körpers im Park gibt.
»Unsere Bedürfnisse nach Licht und Platz wurden von allen Seiten ernst genommen. Das Architekturbüro hat sich nach innen verwirklicht und nicht nach außen ein Denkmal gesetzt.« Daniela Lehmann, Direktorin
Stärken stärken – Mit dem Schließen der westseitigen Lücke wird der historische Baukörper klarer und steht ruhig und selbstbewusst da. Seine denkmalpflegerisch schützenswerte Qualität mit seiner dominanten Stellung am Platz wird dadurch gestärkt.
»Die neue Volksschule Angedair ist für die Kinder ein großes Wohnzimmer mit vielen Lern- und Spielmöglichkeiten im Innen- und Außenbereich. Die Gemeinde Landeck hat nun eine markante und zeitgemäße Schule in ihrem Zentrum.«
Lucie Vencelidesova, Franz&Sue-Projektleiterin
Weiterbauen – Die beiden Obergeschoße der Schule konnten wir relativ einfach für die gewünschten offenen Lernlandschaften adaptieren. Die Lernzonen sind jeweils an den Gebäudeecken positioniert. Hier werden sie von zwei Seiten belichtet. Die bestehenden Wände haben wir teilweise aufgebrochen und stattdessen mobile Raumteiler eingesetzt – nun können die danebenliegenden Klassenräume nach Bedarf weg- und dazugeschaltet werden.
»Wir haben eng mit Schulleitung und Gemeinde zusammengearbeitet – das Ergebnis ist eine sympathische, moderne Schule, in der sich LehrerInnen und SchülerInnen rundum wohlfühlen.« Erwin Stättner, Franz&Sue-Partner
- 年份
- 2018
- Project Status
- 已建造
- 客户
- Stadtgemeinde Landeck
- 团队
- Lucie Vencelidesová (PL), Anna Ladurner, Alexandra Flanjak, Brigitta Szakal, Bernd Stuffer, Wolfgang Fischer, Joseph Suntinger, Philipp Stromer, Philipp Wenzl, Joshua Meighörner
- Statik
- DI Georg Pfenniger
- Bauphysik
- Schöberl & Pöll GmbH
- Gebäudetechnik
- DI Dieter Schwaninger, HG Engineering
- Landschaftsplanung
- EGKK Landschaftsarchitektur
- Brandschutzplanung
- FSE Ruhrhofer & Schweitzer GmbH
- Sportstättenbau
- Ingenieurbüro Laurin Hosp
- ÖBA
- Rudigier & Spiss OG
- Fotografie
- Lukas Schaller







