Scuola Elementare e Palestra

Magliaso, 瑞士
可视化 © Durisch + Nolli Architetti | Flooer
可视化 © Durisch + Nolli Architetti | Flooer
可视化 © Durisch + Nolli Architetti | Flooer
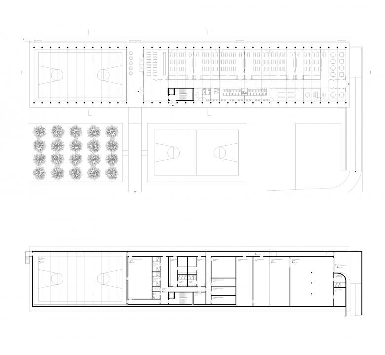
图纸 © Durisch+Nolli
图纸 © Durisch+Nolli
图纸 © Durisch+Nolli
年份
2020
Project Status
设计
客户
Comune di Magliaso
团队
Aldo Nolli, Pia Durisch, Francesco Nozzi, Francesco Parisi
Ingegnere Civile
Lurati Muttoni Partner SA
Architetto Paesaggista
De Molfetta & Strode Landscape Architects

以下出品方的其他项目 Durisch + Nolli Architetti 

FHZGR Fachhochschulzentrum Graubünden
Coira, 瑞士
Loft B
Riva San Vitale, 瑞士
Kloster S. Maria Assunta
Claro, 瑞士
Verwaltungszentrum VBS Bern
Bern, 瑞士
Stabile Amministrativo
Lugano, 瑞士