Haus in Niederems

Waldems, 德国
Video © Börries Götsch | Architektur
照片 © Börries Götsch | Architektur

Zimmer mit Ausblick!
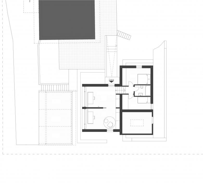
Ein 'Gartenhaus' als Homeoffice, mit 2 Gästezimmern auf 60 m2.
Freistehend, neben dem Wohnhaus, treppt sich der Baukörper den Hang hinunter.
Ganz ohne Beton gebaut! Gegründet auf Schraubfundamenten und ohne Zementestrich, so wird der CO2-Fußabdruck minimiert.
Gebaut aus Holz und mit konsequentem Einsatz von natürlichen Materialien im Innenraum.
PV-Anlage auf dem Dach, konsequente Regenwassernutzung und LWWP.

/ "Gartenhaus" als Homeoffice mit Gästezimmern
/ ca. 60 m²
/ Holzständerbauweise auf Schraubfundamenten
/ fertiggestellt

照片 © Börries Götsch | Architektur
照片 © Börries Götsch | Architektur
照片 © Börries Götsch | Architektur
照片 © Börries Götsch | Architektur
照片 © Börries Götsch | Architektur
照片 © Börries Götsch | Architektur
照片 © Börries Götsch | Architektur
照片 © Börries Götsch | Architektur
照片 © Börries Götsch | Architektur
照片 © Börries Götsch | Architektur
图纸 © Börries Götsch | Architektur
图纸 © Börries Götsch | Architektur
年份
2022
客户
privat

以下出品方的其他项目 Börries Götsch | Architektur BDA 

Haus in Aarbergen
Aarbergen, 德国
Haus in Schmitten
Schmitten, 德国
Pavillon Insel Siebenbergen
Kassel, 德国
Haus in Strinz-Margarethä
Hohenstein, 德国
Haus Burg-Hohenstein
Hohenstein, 德国