Zweifamilienhaus mit Einlegerwohnung

Untererlen, 瑞士
Aussenansicht

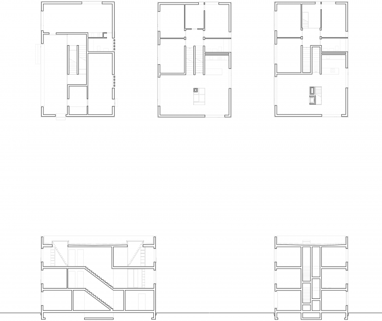
Das westlich von Emmenbrücke, in einer flachen Anhöhe über der Reuss gelegene, dreieckige Grundstück ist auf zwei Seiten mit mächtigen Eichen umgeben. Die Aufgabe bestand darin, unter Wahrung dieser inventarisierten Naturobjekte, ein kostengünstiges Zweifamilienhaus mit einer Einlegerwohnung zu projektieren. Mit einem einfachen, gewichtigen Kubus, welcher, um möglichst viel Platz vor dem Haus freizuhalten, ganz nah an die mächtigen Eichen herangeschoben ist, wurde versucht diesen mächtigen Bäumen ein entsprechendes Gegenüber zu geben und beiden Parteien die Qualitäten des Ortes gleichermassen zugänglich zu machen – den Garten mit der Weitsicht in die Landschaft, als auch den Ort unter den Baumkronen auf dem Dach des Hauses. Beide Wohnungen werden über eine gegen den Garten hin offene Loggia, welche als gemeinsamer gedeckter Gartensitzplatz genutzt werden kann, erschlossen. Gegenläufige Treppen führen durch die jeweiligen Wohnungen auf die von Baumkronen geschützte Dachterrasse.

Treppe
Wohnen
Wohnen
Zimmer
Bad
Grundrisse / Schnitte
图纸 © Albi Nussbaumer Architekten
年份
2001
客户
Privat
团队
Aldo Buffoni, Christoph Flury
Architekt
Dettli Nussbaumer

以下出品方的其他项目 Albi Nussbaumer Architekten BSA/ETH/SIA 

Wohn- und Geschäftshaus Neudorfstrasse
Steinhausen, 瑞士
Wohnüberbauung Klostermatt
Cham, 瑞士
Erneuerung Einkaufszentrum und Bürogebäude Herti
Zug, 瑞士
Anbau Carport Tellenmattstrasse
Oberwil, 瑞士
Umbau Villa Zugerbergstrasse
Zug, 瑞士