桜木幼稚園

石川県金沢市, Japan
Photo © Studio Tawaraya

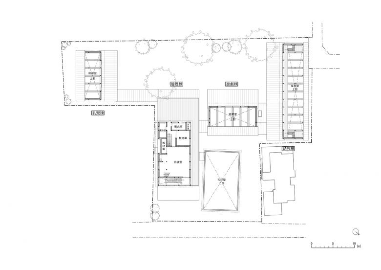
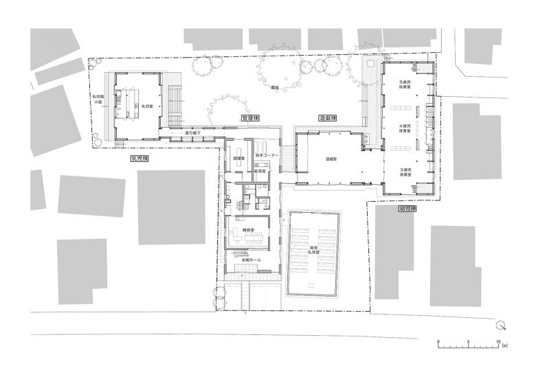
百余年の歴史ある教会付属幼稚園の改築計画。
教えに集中できるシンプルな形の保育室を、遊びの仕掛けを施した廊下で繋ぐことにより、多様な学びにあふれた園舎となることを意図した。高窓から桜の風景を取り込んでいた旧園舎の構成を踏襲し、W.M.ヴォーリズ設計による旧牧師館の階段を再利用することにより、これまでの愛着含めた歴史を継承していくことを期待している。

設計:稲荷明彦建築研究室+多和良屋
構造設計:宮坂建築設計事務所
設備設計:山崎設備設計
施工:トーケン

Photo © Studio Tawaraya
© Studio Tawaraya
Photo © Studio Tawaraya
© Studio Tawaraya
© Studio Tawaraya
Photo © Studio Tawaraya
Photo © Studio Tawaraya
Photo © Studio Tawaraya
© Studio Tawaraya
Photo © Studio Tawaraya
© Studio Tawaraya
Photo © Studio Tawaraya
© Studio Tawaraya
Photo © Studio Tawaraya
Photo © Studio Tawaraya
Photo © Studio Tawaraya
© Studio Tawaraya
Photo © Studio Tawaraya
Photo © Studio Tawaraya
Visualization © Studio Tawaraya
Drawing © Studio Tawaraya
Drawing © Studio Tawaraya
Drawing © Studio Tawaraya
Ano
2018

Outros projetos por 杉中俊介+杉中瑞季/多和良屋 

上馬の家
東京都世田谷区, Japan
踏切の家
大阪府藤井寺市, Japan
桂の家
京都府京都市, Japan
東力の家
石川県金沢市, Japan
HP曲面を挟んだ家
東京都世田谷区, Japan