WWE-Gründe St. Pölten - Baufeld E
Mit dem Stadtentwicklungsgebiet der sogenannten WWE-Gründe gelangt ein ganz besonderer Standort im Norden von St. Pölten zu einer räumlichen Entwicklung. Beim zukünftigen Bindeglied zwischen der Innenstadt und dem Umland, stoßen industrielle Relikte und historische Prägungen auf verwilderte Landschaften am Wasser.
Die Grundkonzeption für Baufeld E sieht zwei Baukörper vor. Die beiden in Holzhybridbauweise geplanten Baukörper bilden im Norden zum Quartiersplatz eine ausgeprägte städtebauliche Kante mit (Klein)Gewerbe bzw. nutzungsoffener Wohnnutzung. Im Osten öffnet sich die Bebauung zum Auwald und schafft einen fließenden Übergang vom geschützten Innenhofbereich zum Naturraum.
Das vorliegende Gestaltungsprinzip folgt den grundlegenden Regeln und Spannweiten zur Umsetzung in Holzhybridbauweise. Die Baukörper werden in der Horizontalen als auch in der Vertikalen abgestuft ausgebildet. Dadurch ergibt sich ein differenziertes, abwechslungsreiches Erscheinungsbild für beide Baukörper. Die abgestuften Fronten sind strukturiert und durch Kanten und Versatz geprägt. Die den Wohnräumen zugeordneten Fronten sind geprägt durch durchlaufende Balkone. Für das Erscheinungsbild wird eine zurückhaltende und elegante Durchbildung geprägt vom Naturwerkstoff Holz gewählt. Der in Massivbauweise geplante „harte“ Sockel wird von „leichten Obergeschossen“ in Holz kontrastiert. Dadurch wird der Sockel nicht nur funktionell-konzeptionell von den Obergeschossen unterschieden sondern auch gestalterisch.
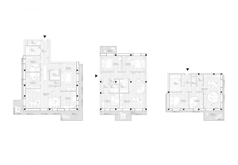
Die kompakte Erschließung der Wohnungen ist als 2 bzw. 3-Spännertypus über insgesamt 5 Stiegenhäuser geplant. Die Stiegenhäuser sind jeweils an den Nord- bzw. an der Westseite der Baukörper angeordnet. Die vorgeschlagene kleinteilige „Stiegen-Nachbarschaft“ ist inspiriert von der Bassena-Stiege der Gründerzeit und fördert die Gemeinschaft und den Austausch im unmittelbaren Wohnumfeld. Das gewählte Erschließungssystem ermöglicht es zudem alle Wohnungen 2-seitig orientiert durchgesteckt oder über Eck zu orientieren. Fast alle Wohnungen sind optimal nach Süden und/oder nach Westen orientiert. Alle Stiegenhäuser sind natürlich belichtet und belüftet.
mehr Infos zum Projekt auf unserer Homepage www.plov.at
- Ano
- 2027
- Cliente
- BAI Invest GmbH & Co KG, ARE Austrian Real Estate Development GmbH
- Equipa
- DI Adrienn Holnthoner, DI Katharina Nogel, Martina Hrgovan, DI Ondrej Kövér, Elisabeth Prantner
- Landschaftsarchitektur
- 3:0 Landschaftsarchitektur



