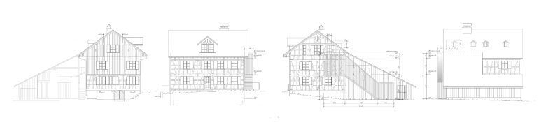
Riegelhaus
Der zweigeschossige Fachwerkbau aus der 2. Hälfte des 19. Jahrhunderts und dem schönen umzäunten Vorgarten beherbergte 2 Wohngeschosse und im Dach eine Büroräumlichkeit, welche über die Wohnlaube im Norden erschlossen war.
Im Zuge der Umnutzung des Büros zu einer Kleinwohnung wird die Erschliessung des Dachgeschosses auf die Ostseite verlegt, damit die Zugänge der zwei Parteien komplett getrennt sind. Die Treppe ist so ausgestaltet, dass auf dem darüberliegenden Dach ein Aussenraum für die Wohnung entsteht. Die leichte Stahlkonstruktion mit einer luftigen und zurückhaltenden Holzverkleidung konkurrenziert die schöne Riegelfassade und haltet die Eingriffe im Bestand gering.
Auftraggeber:in
Privat
Architektur
moos. giuliani. herrmann. architekten.
Jacqueline Kulhanek, Roman Giuliani
Bauleitung
moos giuliani herrmann architekten, Diessenhofen
Statik
Siegfried Holzbauplanung, Freidorf
Fotografie
Pit Brunner, Winterthur
Spezialist:innen
Farbgestaltung: Petra Köller-Hugener, Winterthur
Eckdaten
2 Wohnungen, GF SIA 416: 120m²
Bauzeit: 6 Monate
Bauvollendung: 2013
- Ano
- 2013
- Project Status
- Built



