Casa MAZ
Nel centro di Palermo una vecchia casa adibita a sartoria, viene ristrutturata attraverso il mantenimento e recupero di alcune preesistenze e l’innesto di nuovi elementi su misura che caratterizzano secondo usi contemporanei l’abitazione.
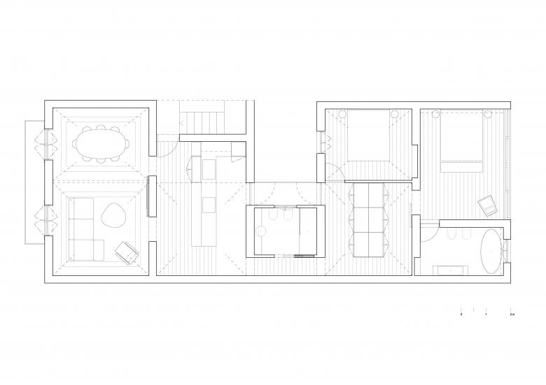
L’impianto della casa, viene ricondotto al suo stato originale attraverso una serie di demolizioni che consentono nuovamente di leggere in successione gli ambienti passanti della casa, caratterizzati da alti soffitti con volte a padiglione. All’ingresso viene inserito un sistema su misura, da un lato contenitore e dall’altro cucina disposta a penisola. L’articolazione a L in altezza del mobile, fatto in legno laccato e rovere, scherma dal salotto lo spazio lavoro della cucina ed instaura una relazione visiva fra i due ambienti. Nella zona giorno i nuovi interventi sono stati ridotti al minimo, lavorando più sul recupero degli elementi dati:
Un affresco probabilmente risalante a inizio 900’ è stato restaurato mentre il pavimento esistente composto da maiolica e graniglia decorata è stato preservato, procedendo solo dove necessario con la sostituzione di alcuni pezzi danneggiati. Si inserisce poi una quinta su disegno contenente la tv che lega la zona pranzo con quella dei divani. Oltrepassando la cucina si accede alla zona notte, qui una stanza di passaggio fa da vestibolo alle camere da letto. Viene inserito al centro un grande armadio a servizio delle camere con ante da entrambi i lati rivestite da specchi, questi riflettono le pareti ma soprattutto il soffitto, dove in questo caso si è scelto di rimuovere l’intonaco ammalorato in superficie lasciando a rustico il padiglione, facendo emergere le varie stratificazioni del tempo. Le porte delle camere sono custom con sistema a bilico una e a scorrimento esterno l’altra. La camera padronale inoltre, gode di un bagno en-suite con vasca, il pavimento è in maiolica e realizzato su disegno da artigiani di Santo Stefano di Camastra.
- Ano
- 2022
- Ebanista
- Laredo















