Bellary House
The Bellary House is located in the small town of Bellary known for its Iron Ore mines, boulder landscape, historic ruins and its hot and dry climate.
The house is located in one of Bellary's transforming neighbourhoods, which is currently seeing a lot of the older modest houses give way to more grander villas.
The house sits on a corner site on edge of this slow but steady transformation.
The site with its dimensions of 60 x 40 ft has its longer edge towards the busier west street and its quieter shorter edge towards the north street.
The house is designed to stave off the outside heat and create cool currents within it so as to form a convectional micro-climate. The outside walls wrap the house in this gesture of protection, pierced only with small and mass produced precast concrete windows that dot this exterior. The windows are kept small with heavy eaves to keep away the harsh sun.
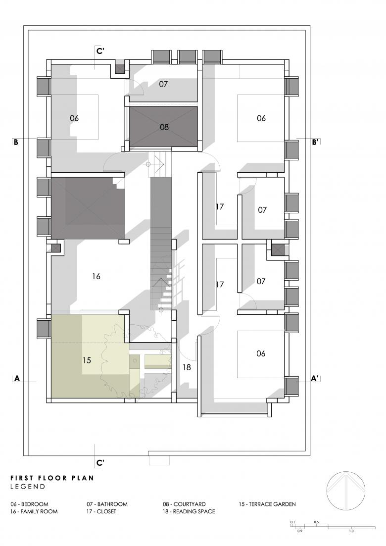
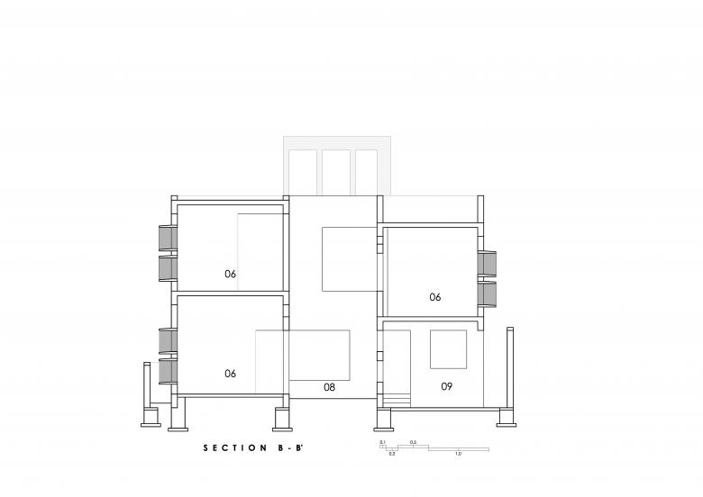
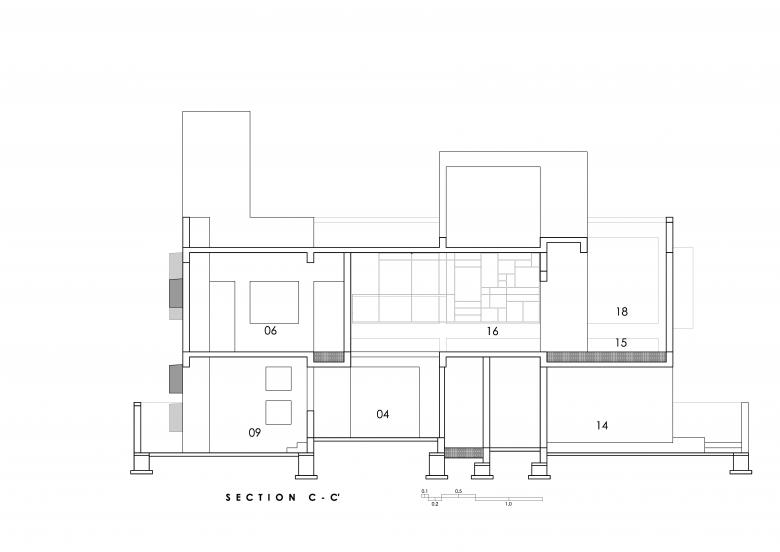
A elevated garden is set in the north east corner as a generator of this microclimate. It is kept open to sky in the shadow of the sun to create currents that flow through the house, just like the light that reflects into the house of its cool surfaces. This Terrace garden is on a mezzanine level as its serves both the ground and the first floor with this generosity of spirit and soft textures.
The family is a small family of four (a couple with two children), with the grandparents having a room on the ground floor for when they visit.
The energy of the family and their generosity and simplicity is at the core of this house.
The spatial concept of the house was to elongate the experience of the house along the length of the site; to create ephemeral stretched out memories along this length of laughter and fun, of busy-ness and lethargy, of daily rituals and 'those special days'.
This length is opened up by lowering the east half of the house, by tucking in the car park, the helper's room , stores and the utility areas under it. The Terrace garden, the Family Room and the Kitchen line up north to south as the spaces along this length with a Bedroom coming at the southern end of this mezzanine. The kitchen here is kept open as a cut out along this length to break certain traditional notions attached to it (especially where women folk disappear into), and also to allow for a more inclusive 'family' space.
The mezzanine becomes the catalyst in developing the spaces of this house, as it hovers in between the long and open living cum dining on the ground floor and the private bedrooms on the first floor. The low height scales down the house, personalizes the gaze lines of interactions and dissolves the spaces as a gradation rather than a stack.
The mezzanine Bedroom is especially designed to 'keep an eye' on the old grandparents residing in the ground floor bedroom through a small courtyard which also serves as their 'private' garden, a light well and a back drop for Pooja / Temple.
The Western block of the house is more traditional in terms of the stack. The Entry has a skylight from which one sees the plants above, on entering the house. It leads to large and long Living and Dining space which becomes the more formal and grander part of the house. The grandparents' bedroom is at the southern end of this block.
The upstairs houses two bedrooms in a row, with a long passage terminating towards the north in the Reading Space, which overlooks the Terrace Garden.
The House becomes more private every step one takes. The use of the volumes creates imaginary lines of division in public and private access sometimes contradicting the sense of openness it evokes.
The Bellary House is an attempt to invert small town aspirations for big city ideas. It rejects them by addressing space and the energy of a home in a primal way.
- Ano
- 2017
- Equipa
- Vijay Rai, Abhishek Pawar, Satyanarayan, Stefan Fernandes, Gaurav Roy Choudhury








































