Fire Station Sittard
Fire Station Sittard
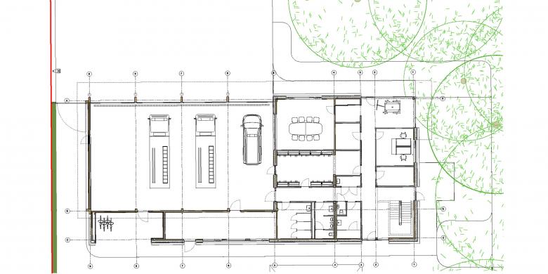
The design of the new fire station is based on the highly functional space program and the urban planning conditions of the residential area.
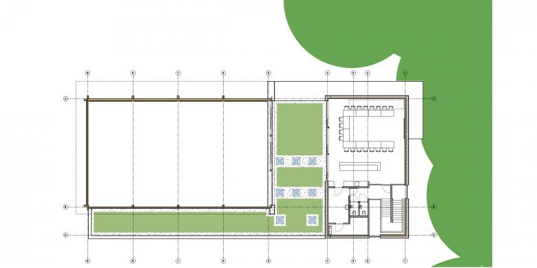
The differently high building parts are connected by a folded roof, which also accentuates the transparent corner of the building, where an old handcart of the fire brigade is exhibited
The wooden façade cladding and the main wooden structure mirror the high sustainable ambitions of the project and anchor the building in a natural way through color and material in the context, which is characterized by beautiful old trees
- Ano
- 2022







