Haus Wehrli
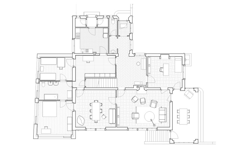
Ausgangslage des Projekts war eine Villa von 1929, die zum Mehrfamilienhaus mit drei grosszügigen Wohnungen umgebaut wurde. Mittels behutsamer Eingriffe in die Architektur blieben der Ausdruck des Hauses und des Gartens trotz des Umbaus und der Erweiterung erhalten.
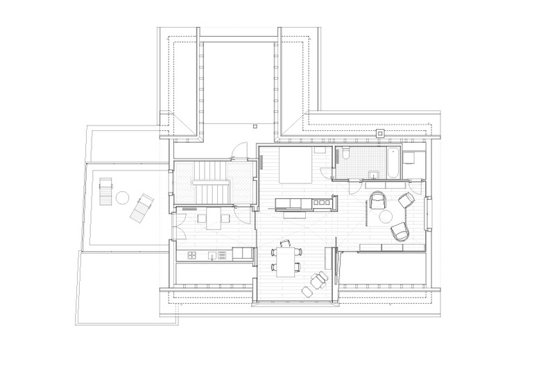
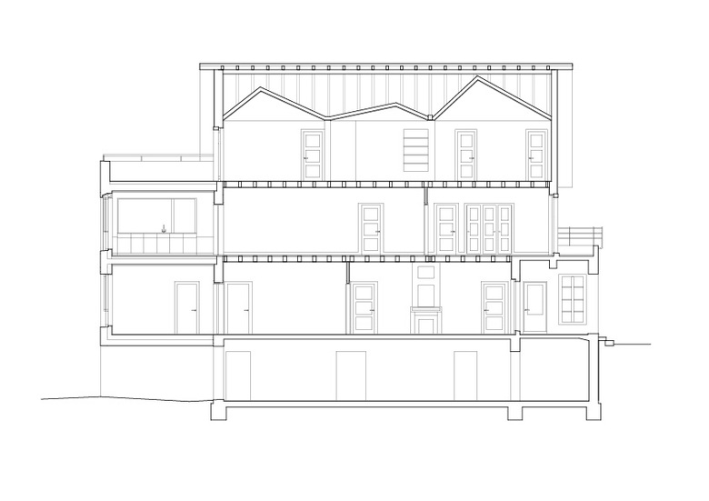
Im neuen Anbau befinden sich im Erdgeschoss zwei Schlafzimmer mit Bad und im Obergeschoss eine helle grosse Wohnküche mit vorgelagerter Terrasse. Das Dach wurde zu einer Dreizimmerwohnung mit Lukarne ausgebaut, die den Blick auf den See öffnet. Die Decken im Dachgeschoss, einzelne steil ansteigende, spitze Kuppeln, überhöhen die Räume und schaffen eine spezifische räumliche Situation.
Der Altbau weist sowohl Stilelemente aus der Nationalromantik auf, so beispielsweise die Ausschmückung des Haupteingangs, das spielerische Versetzen der Fenster oder das Gliedern und Unterspielen der Kubaturen. Es finden sich auch klassisch-moderne Elemente wie die Loggia im Südosten, die sich volumetrisch mit dem Haupthaus zusammenfügt. Ähnlich dieser bestehenden Loggia verbindet sich auch der neue Anbau über eine plastische Abstufung in der Vertikalen mit dem Haupthaus.
Die versetzt angeordneten Öffnungen in der Nordwestfassade spannen eine Fläche auf und betonen trotz ihrer Grösse den Baukörper. Zugleich stellt die Fensterteilung in ihrer Masstäblichkeit einen Bezug zum Altbau her. Auch die Fassade aus sandgestrahltem Beton nähert sich der Farbigkeit und Körnung der verputzten Fassade des Altbaus an, wodurch beide zu einem Ganzen verbunden werden.
Direktauftrag, 2005
Ausführung
2007
- Ano
- 2007









