EBS Electronic Based Systems Center
BIM Is Magical
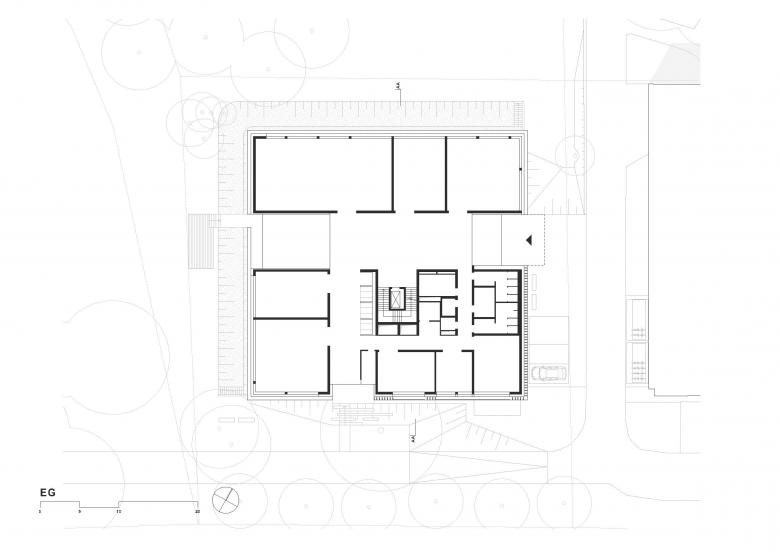
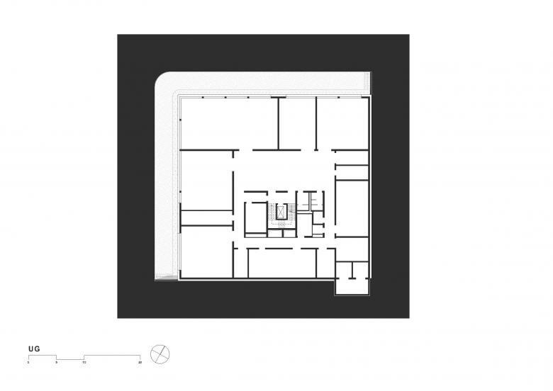
Der Neubau des EBS Centers auf dem Areal der Inffeldgründe der Technischen Universität Graz markiert eine Art Anfangs- und Endpunkt. Als figuratives Satzzeichen wurde der Baukörper deshalb auch zu einem Solitär ausformuliert. Die markante sechsgeschoßige Ostseite des EBS Centers bildet die urbane Front Richtung Campus. Die Abstufung mit Übergang zum Sockel schafft eine sanfte Verbindung zum angrenzenden Grünraumund zur kleinteiligen Nachbarschaft. Der Baukörper gliedert sich in Labor- und Forschungsräumlichkeiten und ein darüber situiertes Punkthaus mit Büronutzung. Sein kompakter, innenliegender Kern mit Stiegenhaus und angrenzenden Nebenräumen gewährleistet kurze Wege. Informelle Besprechungskojen bieten Rückzugsorte und werten den Erschließungsbereich zusätzlich auf. Während sich die Büroräume in den Obergeschoßen U-förmig um den Gebäudekern fügen, verstehen sich die Kommunikationstrakte als Erweiterung der innenliegenden Erschließungsbereiche und orientieren sich ebenfalls zum Grünraum hin. Mit dem EBS Center beschreitet AllesWirdGut überdies neue Wege in der Planung. Denn erstmals wurde ein Projekt von Beginn an unter Einbindung aller Fachplanerinnen und Fachplaner als Open-BIM-Projekt entwickelt. Auf diese Weise kann bereits in einer Frühphase auf einen außerordentlich detaillierten Plan zurückgegriffen werden. Punkt. Rufzeichen!
- Ano
- 2020
- Cliente
- BIG Bundesimmobiliengesellschaft m. b. H
- ARGE Partner & Statik
- FCP - Fritsch, Chiari & Partner
- Bauphysik / Brandschutz
- DI Ianko Ivanov
- Haustechnik
- GAWAPLAN
- Elektrotechnik
- Kubik Project
























