MPREIS Weer
Weer , Oostenrijk
MPREIS WEER
Die Firma MPREIS ist ein qualitätsbewusster, moderner Nahversorger, der sowohl die regionale Wirtschaft fördert als auch an vielen Standorten in Tirol durch außergewöhnliche Architektur begeistert. In Weer hat das Unternehmen einen neuen Markt errichtet, der die nachhaltige und ortsbewusste Haltung unterstreicht.
Lebensmittel und Landschaft
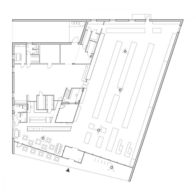
Der MPREIS Weer verwebt einen Lebensmittelmarkt mit der umgebenden Landschaft und thematisiert dadurch die Herkunft und Qualität von Lebensmitteln. Der örtliche Kontext und seine landschaftlichen Elemente wie Felder, Bäume oder Gras werden in sowohl natürlicher als auch in künstlicher Form gestalt- und raumbildend übersetzt.
Das Gebäude befindet sich an der Landestraße am Ortsrand in Weer in unmittelbarer Nähe der Pfarrkirche. Die transparente Hauptfassade des monolithischen Gebäudes ist in Richtung Landesstraße orientiert, die anderen Gebäudeseiten werden von Grün umspült. Eine Metallfassade aus polierten Edelstahlpaneelen reflektiert die natürliche Umgebung je nach Wetter, Jahreszeit und Tageslicht in unterschiedlichen Stimmungen. Sichtbetonflächen des Innenraums treten an der Südfassade nach außen und werden dort als umlaufender Stahlbetonrahmen sichtbar.
Die Ware im Fokus
Ein verglaster Innenhof mit einem gepflanzten Baum holt die Natur direkt in den Markt hinein und steht im Kontrast zu den künstlichen Baumstützen aus Stahlbeton. Gezielte Ausblicke über der Feinkosttheke und durch ein Shedoberlicht fokussieren auf die Berggipfel und bilden den perfekten Rahmen für die Landschaft. Die große Glasfassade öffnet den Markt zum Parkplatz und zum Ort und lässt die Ware nach außen wirken. Die verwendeten Materialien sind auf das Wesentliche reduziert. Im Markt dominiert Sichtbeton in einem warmen Farbton, die Betondecke hat eine samtig strukturierte Oberfläche. Die Ware steht im Vordergrund.
Sinnliche Integration
Das integrierte Bistro „Baguette“ erhält durch die Verwendung von schwarzem gebürstetem Holz eine natürliche Lebendigkeit. Durch die spezifische Farbgebung entsteht eine homogene Integration in das Gesamtkonzept, wobei Akzente in Messing und Grün den Raum gliedern und zugleich verbinden. Unterschiedliche Sitzmöglichkeiten auf teilweise ledergepolsterten Eichenholzmöbel bieten einen gemütlichen Ort zum Wohlfühlen an, der sich im Süden des Marktes in den Außenraum erweitert.
Ganzheitliche Nachhaltigkeit
Das Gebäude ist als Passivhaus ausgeführt, es wird ausschließlich mit der Abwärme der Kühlung geheizt. Die Kühlung erfolgt über natürliche Nachtlüftung. Die Glasflächen und das Vordach sind auf den Sonnenverlauf hin optimiert, das Dach ist vollflächig mit Photovoltaik ausgestattet. Akkus speichern den Solarstrom zur Erhöhung des Ertrages und Verbesserung der Versorgungssicherheit.
- Architecten
- LAAC
- Jaar
- 2017
Gerelateerde projecten
Magazine
-
-
-
-
Un despatx madrileny signa un visionari catalitzador urbà en West Palm Beach
Andrea Pala | 29.11.2018 -
L'arquitectura de Francis Keré en escena en el Museu ICO de Madrid
Andrea Pala | 28.10.2018
















