Berufsbildungs- und Technologiezentrum, Augsburg
Augsburg, Duitsland
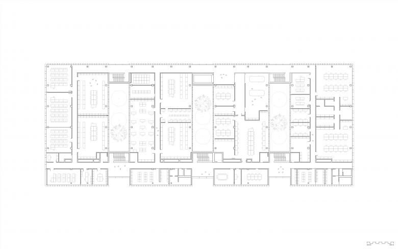
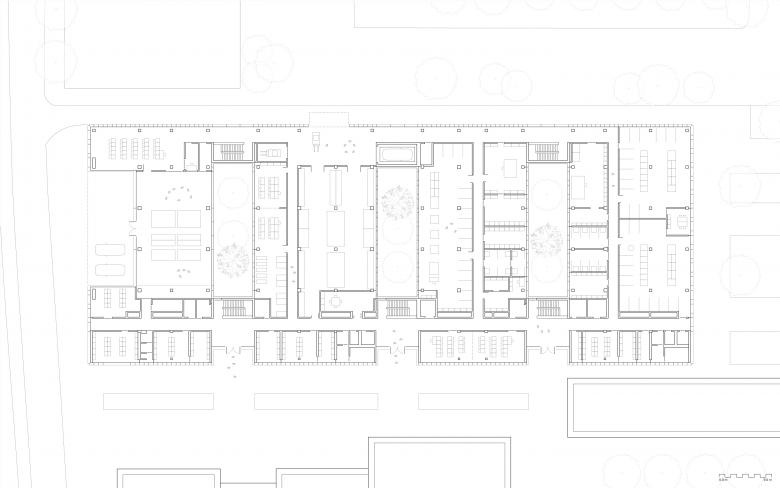
Der Campus der Handwerkskammer für Schwaben liegt in einem von vielfältigen Nutzungen geprägten Gebiet am Rande von Augsburg. Wohnen, Freizeiteinrichtungen und Naherholungsflächen liegen in unmittelbarer Nachbarschaft. So grenzt die Spickelwiese - ein attraktiver Grünraum - im Osten an das Grundstück der HWK, im Westen befinden sich der Augsburger Zoo und der botanische Garten. Auf dem Gelände hatten Gebäude aus unterschiedlichen Jahrzehnten eine heterogene bauliche Struktur entstehen lassen. Seit 15 Jahren entwickelt die HWK den Standort neu. Der Neubau des Berufsbildungs- und Technologiezentrums (BTZ), realisiert in zwei Bauabschnitten, ist der größte und wichtigste Entwicklungsschritt für das Areal.
Das BTZ ist in vier Riegel gegliedert, verbunden durch drei Innenhöfe. Durch die Kompaktheit des Baukörpers und die Stapelung der Nutzungen gewinnt die Handwerkskammer auf ihrem Campus ein hohes Maß an nutzbarer (Ausbildungs-) Fläche. Darüber hinaus entstehen durch die Setzung des Baukörpers qualitätvolle Außenräume für Pausen und Veranstaltungen. Das neue Ausbildungszentrum beherbergt hoch installierte Lehrwerkstätten, ein Zentrallager, Seminar- bzw. Unterrichtssäle sowie Nebenräume für die Auszubildenen und Meister. Die ablesbare Gliederung des Baukörpers in „Köpfe“ und „Körper“ folgt der inneren Organisation des Gebäudes: In den (Bau)Körpern sind die Funktionseinheiten der Werkstätten untergebracht, die u.a. über die Innenhöfe natürlich belichtet werden. Die Köpfe beherbergen die ergänzenden Räume, u.a. Umkleiden und Büros. Die Typologie ermöglicht eine logische Trennung der Wege von Lernenden und Lehrenden im Osten sowie der Logistik im Westen, wo sich auch die Anlieferung befindet.
Als Gebäudehülle wurde eine Elementfassade aus Aluminium und Glas entwickelt, die der geometrischen Ordnung des Stahlbetonskelettbaus folgt. Nord- und Südfassade bestehen aus Kastenelementen mit einem auf das Gebäuderaster abgestimmten Achsmaß von 2,34 m. Dieses gliedert sich in einen horizontalen, opaken Brüstungsbereich und einen vertikalen Teil mit schmalem opakem Lüftungsflügel und breiterer Festverglasung im Verhältnis 1/3 zu 2/3. Auf der Ostfassade wird dieses System aus Kastenelementen mit einem engeren Raster (je 1/3), variiert. Grundsätzlich folgt die Planung und die Ausführung den Prinzipien des nachhaltigen Bauens (BNB silber) mit einer hochwärmegedämmten Hülle und robusten Baumaterialien. Durch die Energieversorgung aus nachwachsenden Rohstoffen folgt die Planung der Zielvorgabe EnEV minus 20%.
- Architecten
- Birk Heilmeyer und Frenzel Architekten
- Jaar
- 2020
Gerelateerde projecten
Magazine
-
-
-
-
Un despatx madrileny signa un visionari catalitzador urbà en West Palm Beach
Andrea Pala | 29.11.2018 -
L'arquitectura de Francis Keré en escena en el Museu ICO de Madrid
Andrea Pala | 28.10.2018
























