Wohnbau Heiliggeiststraße

Heiliggeiststraße 1b, 6020 Innsbruck, Oostenrijk
Photo © Ufuk Sagir

Ziel war es ein modernes Stadthaus als Teil des Blockrands zu entwerfen, das sich seiner Verantwortung gegenüber dem Kontext stets bewusst ist. Dessen Präsenz durch die Neuinterpretation der gründerzeitlichen Lochfassaden geprägt wird. Eine Architektur, die den Ort, die Form und die Materialität in Relation setzt und die sowohl private als auch öffentliche Interessen gleichermaßen berücksichtigt.

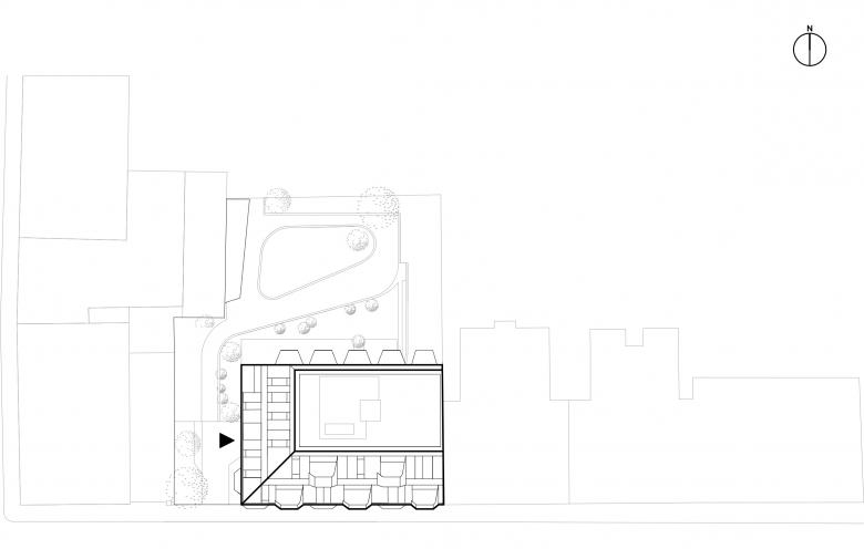
Gegenstand des Projektes ist ein Wohnbau mit Flächen für Büro- oder Ateliereinheiten im Erdgeschoss sowie eine Tiefgarage. Die Positionierung des Baukörpers, welche definiert wird durch eine straßenseitige Baufluchtlinie und west- bzw. nordseitige Baugrenzlinien, weist innerhalb des Blockrandes eine spezielle städtebauliche Situation auf. Das Baufeld sieht vor, dass der Baukörper die Baulücke nicht vollständig schließt, sondern einen Rand ausbildet, der das Eckgebäude in der Leopoldstraße berücksichtigt. Damit werden anstatt zwei, drei Gebäudeseiten ausgebildet.

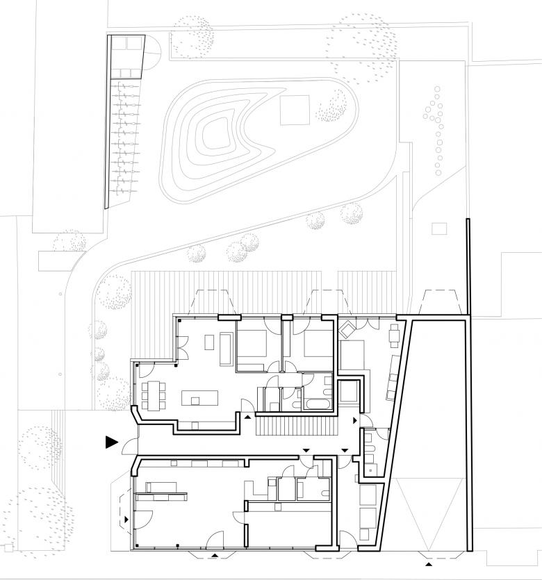
Die Erschließung der Wohnungen findet westseitig auf dem Grundstück über einen begrünten Vorhof statt. Die Geschosshöhe wurde im Erdgeschoss auf ca. 3 m lichte Höhe angehoben.

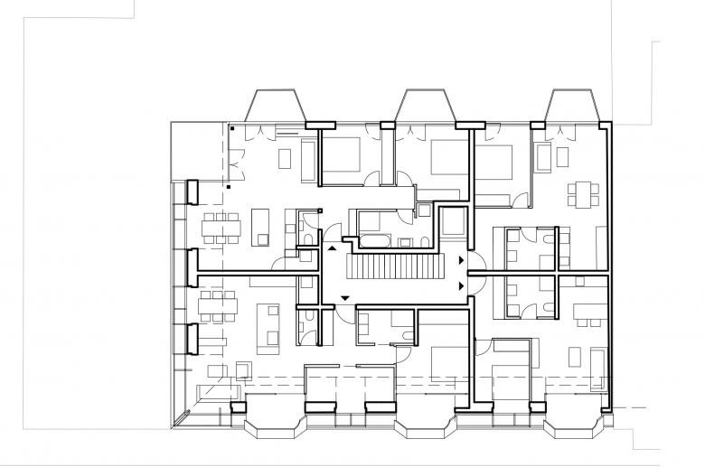
29 lichtdurchflutete Wohnungen, mit unterschiedlicher Größen von 1-4 Zimmern, werden mit raumhohen Verglasungen und vorgelagerten Balkonen ausgestattet. Die jeweils über 2 Geschosse gleichbleibenden Grundrisskonstellationen gruppieren sich um einen innen liegenden Erschließungskern.

Architektonisch versucht das Gebäude die Umkehrung einer Lochfassade. Das Gebäude gliedert sich dabei nicht durch Öffnungen [Fenster] in einer massiven Wand, sondern durch Brüstungen, Balkone und blickdichten Elementen in einer Großteils transparenten Gebäudehülle. Die Fassadengestaltung beruht auf einem rhythmisierenden Wechselspiel von transparenten Glasscheiben und opaken, hinter lüfteten Metallelementen. Die raumhohen Verglasungen werden mit einem außenliegenden Sonnenschutz ausgerüstet.

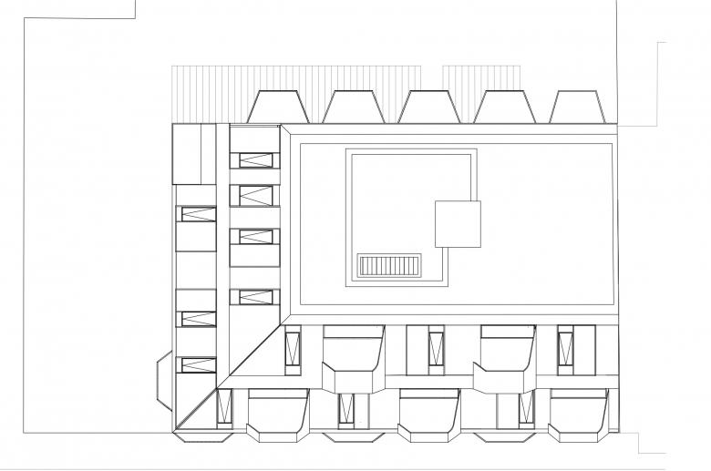
Geschossweise alternierende Balkone gliedern die Fassadenansicht. Die Absturzsicherung der trapezförmigen Balkone und Dacheinschnitte sind aus teilweise perforierten, Metallverkleidungen konzipiert. Die südseitigen Elemente kragen leicht aus der Fassadenebene heraus und folgen der Idee des französischen Balkons. Das geneigte Dach wird als Weiterführung der vertikalen Fassadenflächen verstanden und daher ebenfalls als Metalleindeckung ausgebildet. Die extensiv begrünte horizontale Dachfläche ist in einem Teilbereich durch eine Terrasse eingeschnitten.

Das Gebäude wird an der westseitigen Grundstückslücke über einen vorgelagerten offenen Hof erschlossen. Eine Grünzone mit hochstämmigen Bäumen bildet den Pufferbereich zum Garten der Wohnanlage. Dieser ist größtenteils als Grünanlage für alle Bewohner konzipiert. An der westlichen Grundstücksgrenze sind Fahrradstellplätze und Müllbehälterüberdachung vorgesehen. Ein Kinderspielplatz bildet das Zentrum des Gartens mit Wegen und Aufenthaltsflächen.

Photo © Marc Lins Photography
Photo © Marc Lins Photography
Photo © Marc Lins Photography
Photo © Marc Lins Photography
Photo © Marc Lins Photography
Photo © Marc Lins Photography
Lageplan
Drawing © LAAC
Grundriss Erdgeschoss
Drawing © LAAC
Grundriss Obergeschoss
Drawing © LAAC
Draufsicht
Drawing © LAAC
Schnitt
Drawing © LAAC
Ansicht
Drawing © LAAC
Jaar
2021
Klant
MOSER Wohnbau & Immobilien GmbH
Wettbewerbsteam
Kathrin Aste, Frank Ludin, Julian Fahrenkamp, Tobias Dorsch
Planungsteam
Kathrin Aste, Frank Ludin, Daniel Luckeneder, Julian Fahrenkamp (PL), Tobias Dorsch, Ufuk Sagir , Benjamin Jenewein

Andere projecten van LAAC 

HYPO Tirol Kufstein
Kufstein, Oostenrijk
MPREIS Weer
Weer , Oostenrijk
Austro Control Zentrum Wien
Wien, Oostenrijk
Privates Wohnhaus
Innsbruck, Oostenrijk
Skijump Schushinsk Astana
Schushinsk, Kazakhstan