Wohnüberbauung Letzihof
An einer Nahtstelle von unterschiedlichen Baustrukturen erinnert der Neubau Letzihof in seiner Dimension und Erscheinung an die ehemaligen Gewerbe- und Industrieanlagen. Im heterogenen Kontext weist das Gebäude einen hohen Wiedererkennungswert auf.
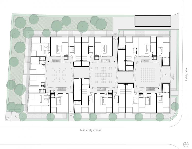
Vom markanten Eingang erhält man einen Blick in das innere Raumgefüge. Die halböffentlichen Höfe mit Durchgängen untereinander verbunden, bieten den Bewohnern eine Stimmung von Privatsphäre und Sicherheit und sind Orte der Begegnung. Schiebeelemente als individuelle Sicht- und Sonnenschutz mit intensiver Farbigkeit prägen jeweils mit unterschiedlichen Motiven zwei gegenüberliegende Hoffassaden. Wie „Puzzleteile“ entwickeln sie ein dekoratives und sich veränderndes Spiel. In Zusammenarbeit mit der Künstlerin Annelies Štrba erhält jeder Hof eine eigene Farbstimmung, die die Hofräume zu riesigen tapezierten Wohnzimmern transformieren. Die einzelnen Paneele haben eine sehr hohe Eigenständigkeit, behalten auch im zerlegten Zustand ihre Kraft.
Hohe Bandfenster und die Materialisierung mit Alu-Fenstern und anthrazitfarbigen Sinusblechen stärken an der Fassade den industriellen Charakter. Im Kontrast dazu steht der Rhythmus der Fenster, unterbrochen durch die Faltfenster und die textilen Markisen. Die Loggien sind als Jahreszimmer konzipiert und im Wohnbereich integriert. Mit verglasten Schiebetüren werden sie flexibel dem Aussen- oder Innenraum angebunden. Die energetisch hochwertigen Faltfenster an der Fassade können auf der ganzen Breite geöffnet werden.
Zwischen den Sichtbeton Schotten der Tragstruktur entsteht ein offenes, mit raumhohen Schiebetüren unterteilbares Raumkonzept. Ein frei in den Raum gestellter Kern mit Bad und Küche aus Leichtkonstruktion verleiht den Wohnungen Grosszügigkeit, Flexibilität und spannende Raumbeziehungen.
Die Wohnungen werden über eine zentrale Lüftungsanlage mit frischer Luft versorgt. Erdsonden und Wärmepumpen garantieren warmes Wasser und Böden.
Der Aussenbereich besteht aus dem wohnungsnahen Freiraum, der den Bau mit Garten- und Sitzplatzgürtel umschliesst und aus dem rückwärtigen Gemeinschaftsgarten, der einen ruhigen Sitzplatz mit Spielmöglichkeiten beinhaltet.
- Jaar
- 2016


