Mehrfamilienhaus Hardstrasse
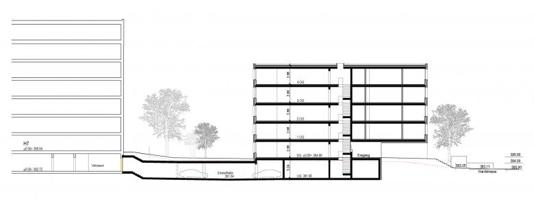
Das Mehrfamilienhaus an der Hardstrasse ergänzt auf der noch freien Fläche die beiden 2012 - 2018 erstellten Ersatzneubauten. Innerhalb des ortsbaulichen Gesamtkonzeptes wird der Neubau in die Siedlungsstruktur eingefügt. Der neue fünfgeschossige Baukörper übernimmt die Ausrichtung und Höhen der Nachbarbauten und unterscheidet sich bewusst von den beiden turmartigen Solitärbauten an der Kapellstrasse.
Der Neubau liegt in unmittelbarer Nähe zur S-Bahnstation Neuenhof und ergänzt mit 34 2 ½ und 3 ½ Zimmerwohnungen das Angebot der bestehenden Siedlung mit mehrheitlich Familienwohnungen.
Der kompakte, optimal gedämmte Baukörper ist im Minergie A Label geplant, die Wärmeerzeugung erfolgt über eine Grundwasserwärmepumpe und die Dachfläche wird mit einer Fotovoltaikanlage ausgestattet. In der neuen Einstellhalle zahlreiche Ladestationen für die e-Mobilität angeboten.
- Jaar
- 2021
- Klant
- AXA Leben AG
- Landschaftsarchitekt
- SKK Landschaftsarchitekten AG
- Visualisierung
- Nightnurse Image AG





