Erlinsbacherstrasse, Aarau

Aarau, Zwitserland
Visualization © indievisual

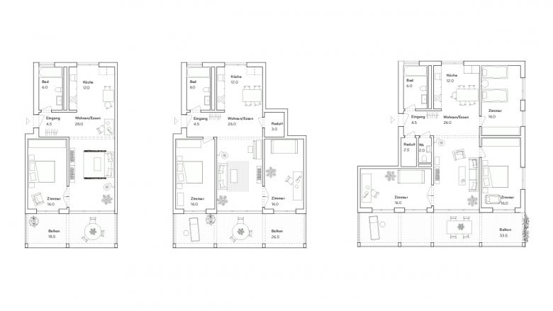
Direkt am Aareufer, zwischen Erlinsbacherstrasse und Kraftwerkskanal entsteht ab 2024 eine gemischt genutzte und nachhaltige Überbauung mit 60 bis 70 Mietwohnungen. Die Zwillingshäuser der neuen Gebäudekette sind so gesetzt, dass heterogene Zwischenräume entstehen, die Durchlässigkeit und Freiraum schaffen. In den Erdgeschossen liegen Gemeinschaftsräume, eine Kita, Gewerbe, auch ein Bistro ist als Treffpunkt für die neue Bewohnerschaft geplant und bereichert die Nachbarschaft. Alle Gebäude sind aus dem lärmkritischen Bereich zur Aare hin weggerückt, sodass auf aufwändiger Massnahmen zur Lärmreduktion verzichtet werden kann. Die drei- bis viergeschossigen Häuser werden als Holzskelettbauten mit Treppenhäusern aus vorgefertigten Lehmgusselementen konstruiert. Es soll soweit wie möglich auf Beton als Baumaterial verzichtet werden. Eine Erdsonden-Wärmepumpe pro Gebäude und in Dach und Fassaden integrierte Photovoltaik-Anlagen versorgen die Überbauung mit Energie. Sämtliche Wohnungen sind zwei- oder sogar dreiseitig orientiert und profitieren somit gleichwertig von der attraktiven Lage am Fluss. Die Wohnidee basiert auf einem einfachen System von nutzungsneutralen Zimmern rund um den zentralen Wohnraum. Damit funktioniert der gleiche Wohnungstyp für eine kinderreiche Familie, für ein Paar, das von zu Hause aus arbeitet oder auch für eine WG.

Kategorie: Wohnen, Gewerbe
Auftragsart: Wettbewerb, 1. Preis
Auftraggeberin: Logis Suisse AG
Landschaftsarchitektur: Lorenz Eugster Landschaftsarchitektur und Städtebau
Bauingenieur: Jäger Partner AG, Zürich
Holzbau: Timbatec Holzbauingeniere Schweiz AG
GFA SIA 416: 10'087 m2
Wohnungen: 60 bis 70
in Bearbeitung: seit 2022

Visualization © indievisual
Jaar
2023

Andere projecten van Duplex Architekten 

ITU Headquarters
Genf, Zwitserland
Mit den Augen der Anderen, Ein Film von Anne Kaestle, Dan Schürch, Levente Paal
Berlin, Duitsland
Esplanade Nord
Biel, Zwitserland
WALO
Zürich, Zwitserland
Siedlung Burkwil 
Meilen, Zwitserland