Universitäres Zentrum für Zahnmedizin Basel
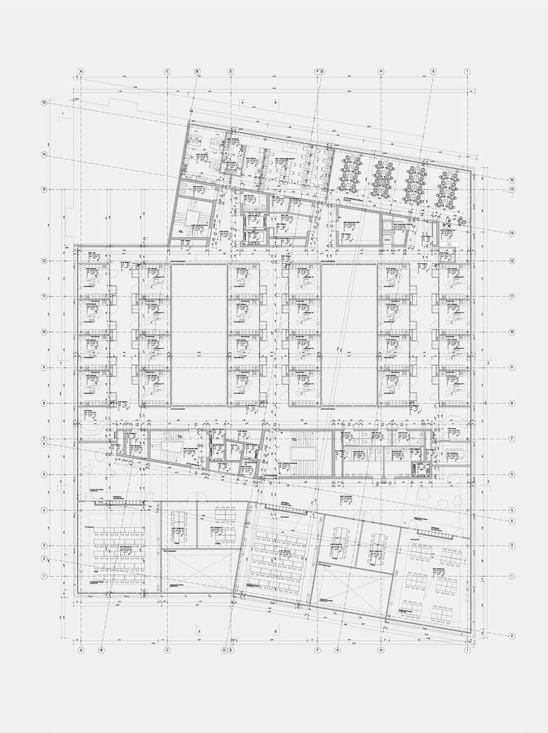
Das Areal befindet sich in einer Übergangszone zwischen Blockrandbebauung und Solitärbauten der chemischen Industrie. Ein flaches Volumen folgt den gegebenen Baulinien und Grenzabstände und besetzt einen grossen Teil des Perimeters. Der pragmatisch städtebaulichen Logik folgt eine räumliche Verschränkung der vorhandenen Strassengeometrie, die in einfacher Weise eine markante Volumetrie erzeugt und dem neuen Campus Rosental eine klare repräsentative Adresse verschafft.
Entlang den Strassen werden die Fluchten respektiert und die Quartierdimension berücksichtigt, im Arealinnern wird im Gegensatz dazu der geschlossene Strassenkorridor aufgebrochen und das konventionelle Stadtvokabular von Strasse und Platz verlassen. Ein Raumtrichter schafft einen autonomen Stadtraum mit spezifischer Beziehung zu den Gebäudegruppen und bildet einen Anfang der zukünftigen Raumsequenz und identitätsstiftender Ort für den Campus Rosental. Zwei Hofräume und zwei statische Kerne gliedern das Volumen in drei Zonen. Die geknickte, südorientierte Seite zum Eingangsraum, ein Mittelteil welcher sich um die beiden Höfe gruppiert und der rückseitige Bereich zur Maulbeerstrasse mit der Anlieferung.
Diese Teilung wiederspiegelt auch in der Nutzungsverteilung die Gebäudestruktur. Der Mittelteil mit den beiden Lichthöfen beinhaltet als kompakte Raumsequenz die Behandlungsräume sowie die Polyklinik, die Raumschicht entlang der Maulbeerstrasse wird mit Büroarbeitsplätze besetzt und der Kopf zum Eingangsraum als öffentlicher Teil beinhaltet die Bibliothek, die Seminarräume, den Hörsaal sowie die Labors.
Die drei Zonen werden jeweils durch Kerne getrennt, welche die vertikale Erschliessung sowie die installationsintensiven Räume beinhalten.
Durch die umlaufenden horizontalen Betonbänder schafft der Bau sowohl eine Anbindung an die vorwiegend horizontale Gliederung der chemischen Industrie als auch an die quartiertypischen Fassaden der Wohnhäuser. Die alternierend eingesetzten Verglasungen zwischen den massiven Brüstungen werden durch den Einsatz von perforiertem Trapezblech zusätzlich gegliedert und verbinden sich mit den mineralischen Betonbändern zu einer „massiven“ Einheit.
- Jaar
- 2014-2019
- Klant
- UZB Basel
- Team
- Mikael Ljuggren, Sigrid Wittl, Yvonne Meier, Katharina Loeble, Tom Licht, Didier Oskam, Florence Willi, Olivia Furrer, Panagiota Michailidou
- Baumanagement
- Rapp Architekten
- Bauingenieur
- Schnetzer Puskas Ingenieure
- HLK
- Waldhauser + Hermann
- Sanitäringenieur
- Staub & Längle
- Elektroingenieur
- Pro Engineering
- Laborplanung
- Laborplaner Tonelli
- Landschaftsarchitekt
- Fontana Landschaftsarchitektur







