Technisches Betriebszentrum mit Verkehrsleitzentrale
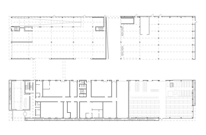
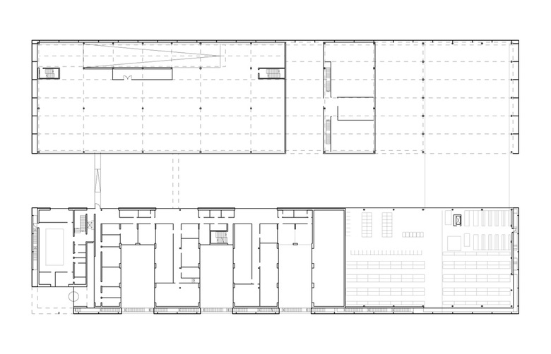
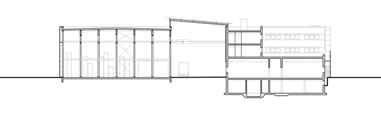
Das neue Betriebszentrum der Landeshauptstadt München soll als technische Infrastruktureinrichtung in seiner funktionalen Gliederung, sowie in seiner Gestaltung beispielgebend für einen Industriebau stehen. Zwei parallele Gebäuderiegel, als kalter und warmer Gebäudeteil ausgeführt, definieren einen durchgehenden glasüberdeckten Hallenraum. Eine Hülle aus perforiertem Leichtmetall fasst die unterschiedlichen Funktionseinheiten zu einem Bauwerk das Offenheit, Dynamik und Wandelbarkeit ausstrahlt. Der Eingang liegt im südöstlichen Riegel und erschließt die Verkehrsleitzentrale, den Verwaltungsbereich mit Besprechungsräumen, die Cafeteria und Werkstätten. Die Parkdecks für Dienst- und Mitarbeiterfahrzeuge sowie die Lagerräume liegen gegenüber im unbeheizten Gebäudeteil. Der glasüberdeckte Hallenraum dazwischen, die sogenannte „Magistrale“ dient dem Be- und Entladen; zwei Stege verbinden die Obergeschosse auf dem kürzesten Weg miteinander. Die Verwendung industriebautypischer, robuster Materialien und Halbzeuge wie Streckmetall, Blech, Glas und Beton werden dem Zweck des Gebäudes als Nutzbau gerecht.
Bauherr
Landeshauptstadt München, Baureferat (Hochbau)
Objektplanung Gebäude
Auer+Weber+Assoziierte
München
Tragwerksplanung
Mayr | Ludescher | Partner
München
Haustechnikplanung
IB Huber
München
Elektroplanung
Rücker+Schindele
München
Bauphysik
Möhler+Partner
München
Freianlagen
Winfrid Jerney Landschaftsarchitekt
München
Bruttogeschossfläche
17.600 qm
Hauptnutzfläche
13.200 qm
- Jaar
- 2012









