Kreissparkasse Göppingen
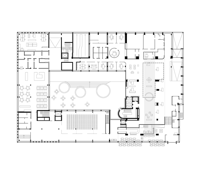
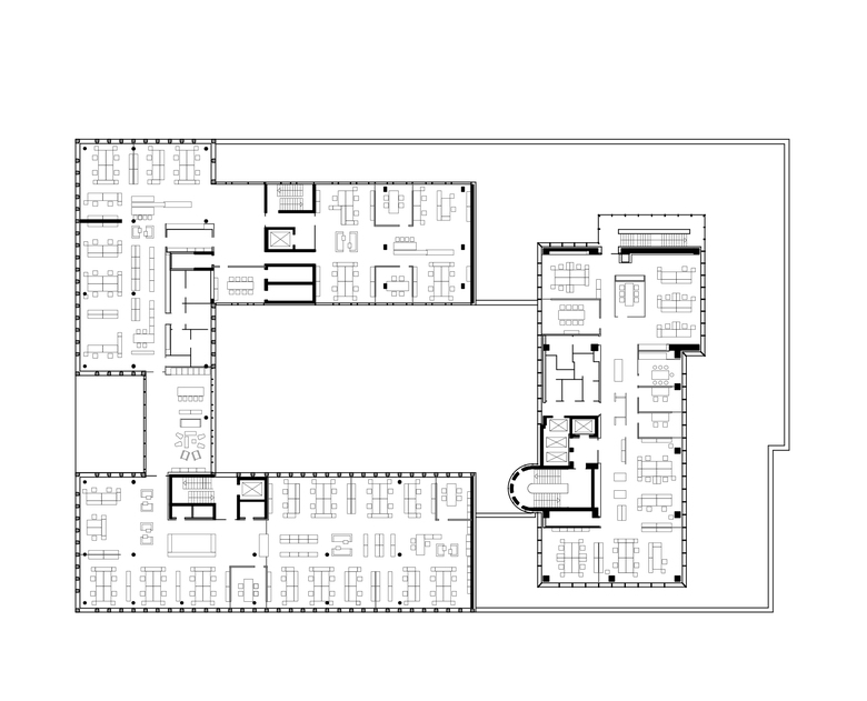
Die Blockrandbebauung der Erweiterung ordnet das Areal der Hauptstelle und orientiert die Kreissparkasse in Richtung Innenstadt. Als Endpunkt der innerstädtischen Nord-Süd-Achse wird der Bahnhofsvorplatz neu formuliert. Die vertikal gegliederte Steinfassade fasst Neubauten und Teile des Bestands zusammen. Das bestehende Hochhaus aus dem Jahr 1974 von Paul Stohrer wird in seiner skulpturalen Prägnanz zurückgenommen und dadurch zum Bestandteil des neu geformten Stadtquartiers. Als erste Kreissparkasse in Deutschland wird die Hauptstelle Göppingen von der DGNB mit Gold ausgezeichnet.
Auftraggeber
Kreissparkasse Göppingen
Architekten
Auer Weber, Stuttgart
Christof Teige (Assoziierter)
Stephan Herrmann (Projektleitung)
BGF
25.050 m2
BRI
93.600 m3
NF
12.540 m2
Leistungsbild
Lph. 1 – 9 HOAI
Zertifikate
Beispielhaftes Bauen Landkreis Göppingen
DGNB-Zertifizierung Gold
Fachplaner
Bankenplanung Kundenhalle: Bredt und Partner, Darmstadt
Tragwerksplanung: Hagedorn Ingenieure, Göppingen
Haustechnikplanung: Herp Ingenieure, Salach
Elektroplanung: Elektroplan Ingenieur GmbH, Göppingen
Energieberatung, Fassadenplanung: DS-Plan, Stuttgart
Projektsteuerung: SüdBau gmbH, Stutgart
Bauleitung: Auer Weber, Stuttgart mit
Jo Carle Architekten, Stuttgart
Fotos
Roland Halbe
- Jaar
- 2014








