NBD Doppelmayr Büro Hohe Brücke

Wolfurt , Oostenrijk
Photo © Hertha Hurnaus

Global Village

Die prägnante Silhouette der neuen Unternehmenszentrale markiert den Auftakt zum Gewerbegebiet Hohe Brücke in Wolfurt. Der in Einzelbaukörper aufgelöste Gebäudekomplex schafft trotz unterschiedlicher Volumina und Höhen ein überzeugendes Ganzes mit einer signifikanten Präsenz. Geprägt durch starke Identität und hohen Wiedererkennungswert wird das Unternehmen mit dem Neubau auch visuell in der Ebene des Rheintals verortet.

Das führende Technologieunternehmen Doppelmayr ist traditionell in Wolfurt verwurzelt und seit jeher in die dörfliche Struktur des Ortsteils Rickenbach eingebettet. Die Neuinterpretation ebenjener städtebaulichen Situation am neuen Standort stellt das Leitmotiv des Neubaus dar. Entlang eines inneren Rückgrates, an dem alle Gemeinschaftsflächen situiert sind, gruppieren sich in den Einzelhäusern unterschiedlich große Bürobereiche.

Der räumliche Erlebniswert dieser Erschließungszone mit seinen Ein-, Aus- und Durchblicken ist von hoher räumlicher Qualität und stellt die Besonderheit des Entwurfes dar. Kommunikation, interner Austausch und das Miteinander werden in den Vordergrund gestellt, gleichzeitig ist Konzentration und ruhiges Arbeiten möglich.

Der Bau unterstreicht Eigenschaften wie Präzision, Innovation und technische Avanciertheit, für die das Vorarlberger Unternehmen steht, gleichzeitig rücken die MitarbeiterInnen, die hier arbeiten, in den Mittelpunkt.

Photo © Hertha Hurnaus
Photo © Hertha Hurnaus
Photo © Hertha Hurnaus
Photo © Hertha Hurnaus
Photo © Hertha Hurnaus
Photo © Hertha Hurnaus
Photo © Hertha Hurnaus
Photo © Hertha Hurnaus
Photo © Hertha Hurnaus
Photo © Hertha Hurnaus
Photo © Hertha Hurnaus
Photo © Hertha Hurnaus
Photo © Hertha Hurnaus
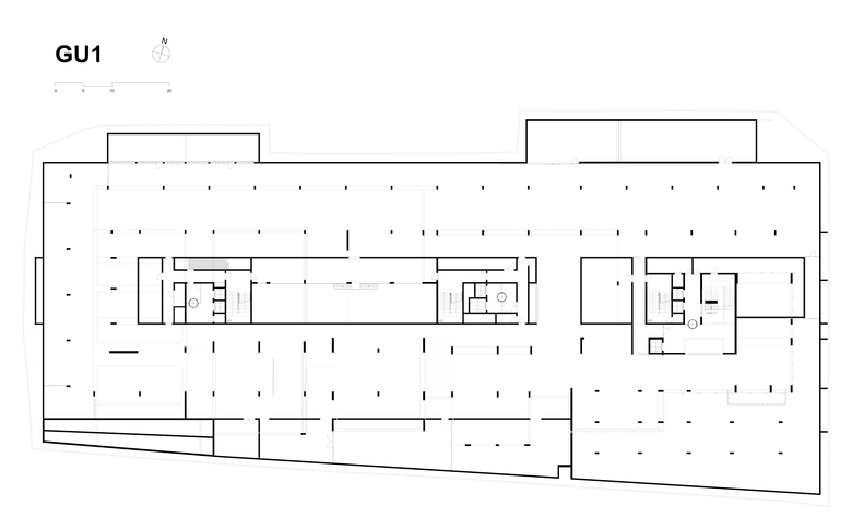
Grundriss UG
Drawing © AllesWirdGut
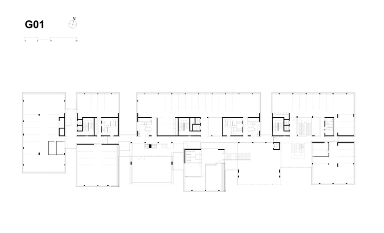
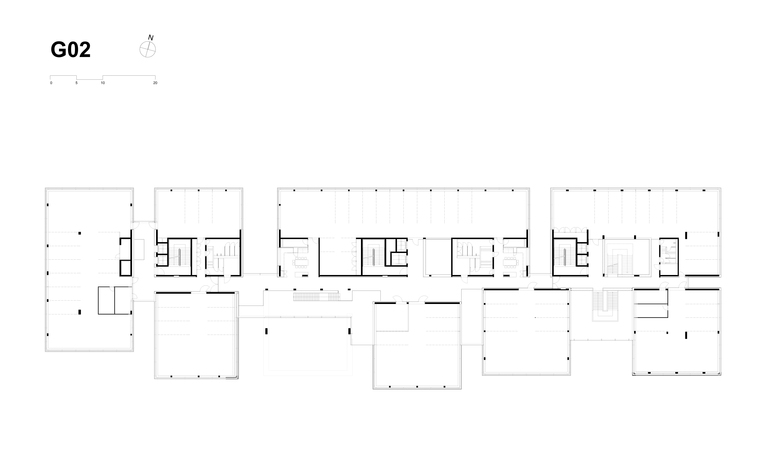
Grundriss Erdgeschoss
Drawing © AllesWirdGut
Grundriss 1
Drawing © AllesWirdGut
Grundriss 2
Drawing © AllesWirdGut
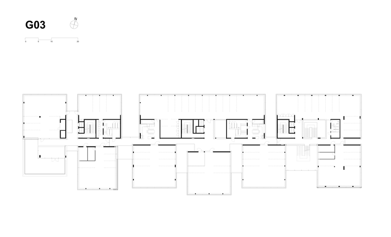
Grundriss 3
Drawing © AllesWirdGut
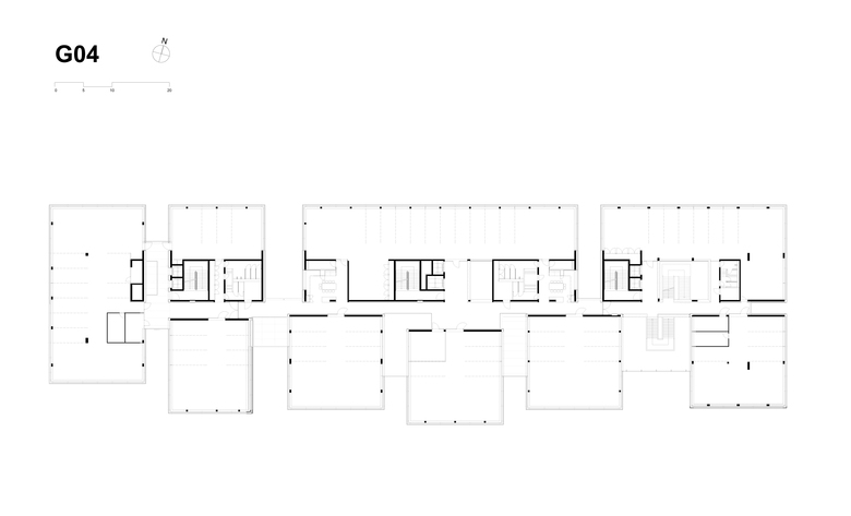
Grundriss 4
Drawing © AllesWirdGut
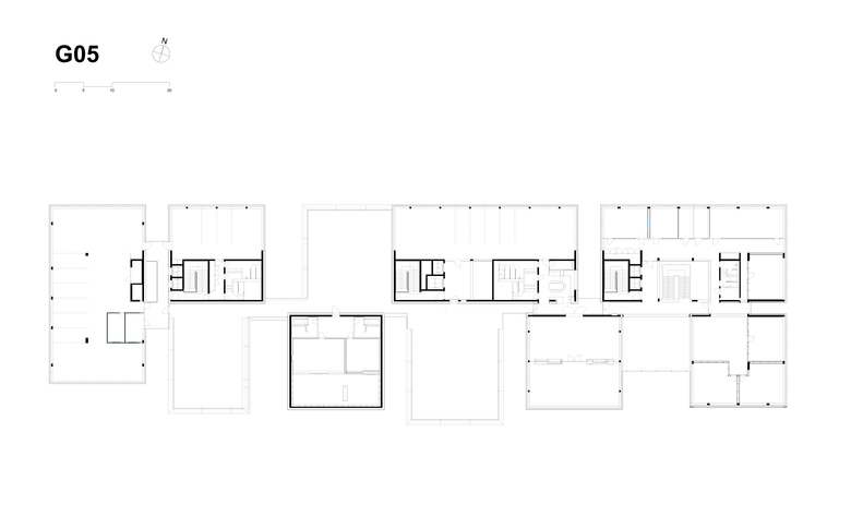
Grundriss 5
Drawing © AllesWirdGut
Schnitt X1
Drawing © AllesWirdGut
Schnitt Y1
Drawing © AllesWirdGut
Schnitt Z1
Drawing © AllesWirdGut
Ansicht Nord
Drawing © AllesWirdGut
Ansicht Süd
Drawing © AllesWirdGut
Ansicht Ost
Drawing © AllesWirdGut
Jaar
2017
Klant
Doppelmayr Immobilien GmbH
Team
Johannes Windbichler, Dennis Assaf, Magdalena Drach, Philipp Feldbacher, Florian Gottler, Olaf Härtel, Thomas Hold, Simona Masárová, Alexander Mayer, András Nagy, Simon Höbel, Jörg Spraider, Kai Sommer, Ivana Valekova
Bauphysik
Spektrum GmbH, Dornbirn
Brandschutz
K&M Brandschutztechnik GmbH, Lochau
Dynamische thermische Simulation
Büro für Technische Physik Christoph Muss, Wien
Elektroplanung
IHM-Elektrotechnik, Hörbranz
Fassadenplanung und Schwarzdeckerplanung
gbd Projects ZT GmbH, Dornbirn
Geotechnik
BGG Consult GmbH, Hohenems
Haustechnikplanung
GM Ingenieure, Dornbirn
Landschaftsplanung
Gruber & Haumer, Bürs
Örtliche Bauaufsicht und BauKG
BM Michael Hassler, Dornbirn
Projektsteuerung
ZIMA Holding AG, Dornbirn | M.O.O.CON GmbH, Wien
Statik
Mader | Flatz ZT GmbH, Götzis
Wasser- und Umwelttechnik
Ingenieurbüro Landa GmbH, Dornbirn

Andere projecten van AllesWirdGut 

REI – Quartier du Parc Reimerwee
Kirchberg, Luxemburg
HCC - Hitachi Columbus Campus
Mannheim , Duitsland
BRU Umbau und Innenraumgestaltung österreichische Vertretung, Brüssel
Brüssel, België
MHF Kalandahaus, Revitalisierung Meierhof
Trausdorf, Oostenrijk
MTH – Mühltalhof 6.0
Neufelden, Oostenrijk