Johanna-Moosdorf-Schule, Gymnasium der Stadt Leipzig

Philipp-Rosenthal-Straße 61-63,, Leipzig, ドイツ
Blick auf das Ensemble aus Schul- und Sportgebäuden mit dem erhaltenen Biotop im Kreuzungsbereich.
写真 © Gustav Willeit

Die höchste Schule Leipzigs

Am 22. August 2024 wurde die neu gegründete Johanna-Moosdorf-Schule in Leipzig-Thonberg eröffnet. 1.400 Schülerinnen und Schüler und 120 Lehrkräfte finden ihren Lern- und Lebensraum im höchsten Schulgebäude der Stadt. Das Gymnasium und die Sporthallen sind auf bis zu sieben Geschossen gestapelt, um den Verbrauch wertvollen Grund und Bodens zu minimieren, ein seltenes innerstädtisches Biotop zu erhalten und großzügige Schul- und Sportfreiflächen zu ermöglichen. Der hohe Schulbaukörper mit seinen weit sichtbaren Uhren markiert den Stadteingang in das Zentrum von Leipzig.

Seit der deutschen Wiedervereinigung lag das Grundstück an der Prager Straße in der Nähe der Alten Messe brach. Die Reste gründerzeitlicher Wohnbebauung waren zu Beginn der 1990er Jahre abgebrochen und das Grundstück nicht wieder bebaut worden. So konnte sich über Jahrzehnte an der prominenten Kreuzung von Prager Straße und Philipp-Rosenthal-Straße ein kleines innerstädtisches Biotop entwickeln, in dem heute Fledermäuse, Brutvögel und seltene Rosenkäfer ihre Heimat finden.

Nach 80 Jahren wird hier die Johanna-Moosdorf-Schule eröffnet, in Erinnerung an eine Schriftstellerin, die ihren ersten Mann in Auschwitz verlor und sich fortan mit dem im Alltagsleben noch wenig aufgearbeiteten Faschismus auseinandersetzte. Die Schule als Raum der Bildung, der Aufklärung und des Diskurses ist wohl die beste Form, um diesen in Vergessenheit geratenen Ort wieder zu beleben.

Der von der Straßenkreuzung hinter das Biotop zurückgesetzte Hochpunkt der Schule formuliert ein städtebauliches Zeichen und schafft einen neuen Orientierungspunkt im Stadtraum. Der Schulbaukörper orientiert sich vorrangig entlang der Prager Straße und bildet hier eine schützende und stadtraumfassende Raumkante zu der stark frequentierten Verkehrsachse Prager Straße. Die gestapelten Sporthallen entlang der Philipp-Rosenthal-Straße werden über einen zurückgesetzten Brückenkörper mit der Schule verbunden. Gebäudesetzung und Schulvorplatz bilden die Adresse der Bildungseinrichtung, während die Schul- und Sportfreiflächen im geschützten rückwärtigen Bereich angeordnet sind.

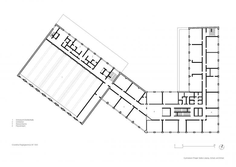
Die Architektur des Schulgebäudes folgt der funktionalen Gliederung des Inneren. Das Erdgeschoss beherbergt öffentliche Bereiche wie Foyer, Bibliothek, Mensa und Aula, die über großzügige Verglasungen eine Verbindung zum Stadtraum herstellen. In den Obergeschossen sind die Unterrichts- und Fachräume um zentrale Flurzonen angeordnet, die als offene Lernlandschaften gestaltet sind. Die Erschließung erfolgt über eine Scherentreppe, die zusammen mit den angrenzenden Lufträumen eine natürliche Belichtung über mehrere Etagen ermöglicht. Über ein zentrales Oberlicht wird Tageslicht in alle Etagen gelenkt, was die offene und kommunikative Atmosphäre im Gebäude unterstützt.

Die gestapelten Sporthallen sind ein zentraler Bestandteil des Projekts. Die untere Dreifachhalle ist als erste paralympische Wettkampfstätte der Stadt konzipiert und u.a. für Sportarten wie Rollstuhlbasketball, Sitzvolleyball und Blindenfußball ausgelegt.

Die obere Dreifachhalle umfasst eine sieben Meter hohe Kletterwand und bietet verschiedene Nutzungsmöglichkeiten für den Schul- und Vereinssport.

Die Schule besteht aus einer materialoptimierten und weitgehend vorgefertigten Stahlbetonkonstruktion, die außen mit heimischem Naturstein bzw. Ziegeln verkleidet ist. Die gestapelten Sporthallen werden aufgrund der großen Spannweiten und dynamischen Lasten aus dem Sportbetrieb mit Spannbeton-Fertigteilträgern überspannt, die mit Spezialkränen eingehoben wurden. Die Raumatmosphäre im Innern wird von farbigen Wand- und Bodenflächen sowie akustisch wirksamen Holzdecken bestimmt.

Die Außenanlagen sind in verschiedene Funktionsbereiche gegliedert. Neben den Pausenflächen für die Schülerinnen und Schüler gibt es begrünte Aufenthaltsbereiche, Hochbeete und Sportfreiflächen. Das bestehende Biotop an der Prager Straße wurde in die Planung integriert und bildet einen naturnahen Übergang zur Stadtlandschaft. Durch diese Gestaltung wird nicht nur ein hoher Aufenthaltswert geschaffen, sondern auch eine nachhaltige Verbindung zwischen gebauter Struktur und umgebender Natur.

Das Bauvorhaben wurde vergleichsweise schnell umgesetzt. Mit der Planung wurde im Juni 2020 begonnen, die Baugenehmigung im September 2021 erteilt, der Baubeginn erfolgte im März 2022 und die Schule wurde im August 2024 eröffnet. Die Ausführung der Bauleistungen erfolgte durch einen Generalunternehmer unter Vorgabe architektonischer Leitdetails für die gestalterisch sensiblen Bereiche.

Mit der Fertigstellung der Johanna-Moosdorf-Schule wurde ein neuer Bildungsstandort geschaffen, der sowohl das schulische Angebot als auch die Sportinfrastruktur in Leipzig erweitert und das Quartier wie auch die Familie der Leipziger Schulbauten nachhaltig bereichert.

Auf dem ehemals brachliegenden Grundstück hatte die Natur viel Zeit zu wachsen. Ein erhaltenes Biotop im Kreuzungsbereich bildet heute einen Übergang zur Stadtlandschaft.
写真 © Gustav Willeit
Lernen inmitten der Messestadt Leipzig - eine Schule im städtischen Kontext.
写真 © Gustav Willeit
Entlang der Philipp-Rosenthal-Straße verbinden sich zwei gestapelte Dreifeldsporthallen mit der Schule. Die untere Halle wird das neue Leipziger Zentrum für paralympischen Sport.
写真 © Gustav Willeit
Blick von den rückwärtigen geschützten Freiflächen auf das Schul- und Sportensemble.
写真 © Gustav Willeit
Gleichberechtigte Teilhabe: Die paralympische Sporthalle bietet allen Menschen einen Ort der Bewegung. Hier finden für Vereine u.a. Rollstuhlbasketball und -rugby, Sitzvolleyball, Blindenfußball und Boccia statt.
写真 © Gustav Willeit
Die obersten Klassenräume mit Blick über Leipzig sind der Sekundarstufe II vorbehalten. Im Hintergrund sieht man das Völkerschlachtdenkmal.
写真 © Gustav Willeit
Der Speiseraum im Erdgeschoss mit Orientierung zum Innenhof.
写真 © Gustav Willeit
Lufträume bringen Licht über alle Etagen in die Mittelzonen, die als offene Lernlandschaften dienen.
写真 © Gustav Willeit
Der Luftraum lässt Tageslicht vom Oberlicht durch alle Etagen in die Mittelzonen des Gebäudes fallen.
写真 © Gustav Willeit
Eine der beiden Scherentreppen mit Blick auf die von oben belichteten Lufträume.
写真 © Gustav Willeit
Erdgeschoss mit Blick auf den Zugang zur Scherentreppe und einem der zwei lichtdurchfluteten Lufträume.
写真 © Gustav Willeit
Die untere Dreifeldhalle für Schul und Vereinssport. Links die ausfahrbare Tribüne für die Zuschauer der paralympischen Wettkämpfe.
写真 © Gustav Willeit
写真 © Gustav Willeit
Die obere Halle für Schulsport mit einer 7 m hohen Kletterwand.
写真 © Gustav Willeit
Lageplan
図面 © Schulz und Schulz
Grundriss Erdgeschoss
図面 © Schulz und Schulz
Grundriss Regelgeschoss
図面 © Schulz und Schulz
Ansicht Süd
図面 © Schulz und Schulz
Querschnitt
図面 © Schulz und Schulz
2024
Project Status
竣工済
クライエント
Stadt Leipzig, Amt für Jugend Familie und Bildung, Amt für Gebäudemanagement
チーム
Matthias Hönig, Anne Gelhaar, Sophie Klonowski, Charlotte Reh, Romana Kranzbühler, Johannes Irmen
Freianlagen/Sportanlagen
r+b landschaft s architektur, D-01097 Dresden
Tragwerksplanung
Mathes Beratende Ingenieure GmbH, D-04109 Leipzig
Thermische Bauphysik, Wärmeschutz, Energiebilanzierung
Graner Ingenieure GmbH, D-04105 Leipzig
HLS-Planung
Zimmermann und Becker GmbH, D-04109 Leipzig
Akustik
GAF mbH, D-04275 Leipzig
Brandschutz
BCL Brandschutz Consult Ingenieurgesellschaft mbH, D-04315 Leipzig

Schulz und Schulz によるその他のプロジェクト 

TROPOS Labormodule
Leipzig, ドイツ
Deutsche Botschaft in Wien
Wien, オーストリア
Büro- und Geschäftshaus TRIAS
Leipzig, ドイツ
Zentrum für Seelische Gesundheit Sächsisches Krankenhaus Altscherbitz
Schkeuditz, ドイツ
Berufliches Schulzentrum an der Nordhaide München
München, ドイツ