Modules Scolaires préfabriqués à Genève
Construction de 6 écoles modulaires préfabriquées en bois, provisoires et déplaçables, sur 4 sites
L’objectif de la Ville de Genève est de mettre à disposition très rapidement de nouvelles infrastructures scolaires et parascolaires répondant aux critères énergétiques THPE pour les sites de Trembley, Allières, Franchises et Vieusseux. Afin de raccourcir au maximum la phase d’exécution, le choix de la Ville s’est porté sur un système de préfabrication en bois pour réaliser ces bâtiments.
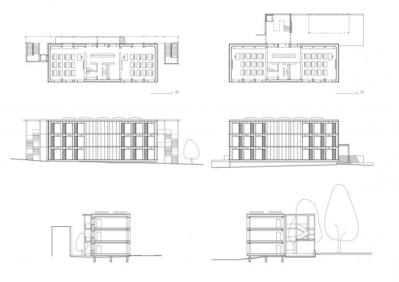
À Trembley, les deux nouveaux volumes suivent la règle d’implantation le long d’une colonne vertébrale de l’école existante, en prolongeant le préau couvert. Les deux volumes imbriqués contenant les classes sont sertis par des arbres séculaires majestueux. Trois grandes ouvertures par classes munies de claustras assurent un éclairage naturel et une vue sur le parc environnant.
Le système constructif favorise l’emploi du bois pour réaliser les planchers, les murs et les façades. Le mobilier intérieur fixe, également réalisé en bois, contribue au caractère chaleureux des classes.
Ecoles primaires composées de classes, classes spéciales, salles des maîtres, réfectoires
Site de Trembley : bâtiment école : 12 classes, bâtiment réfectoire avec cuisine RT
Site de Allières : 6 classes
Site de Franchises : 2 bâtiments de 6 classes
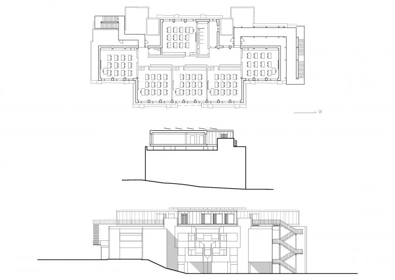
Site de Vieusseux : 14 classes + réfectoire avec cuisine RT
- 年
- 2023
- クライエント
- Ville de Genève
- Ingénieur civil
- EDMS
- ingénieur CVS. physique du bâtiment
- Weinmann SA
- Ingénieur E
- BETELEC SA
- ingénieur Géotechnicien
- Karakas Français SA






























