Wohnhausanlage Zistersdorf
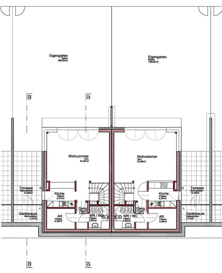
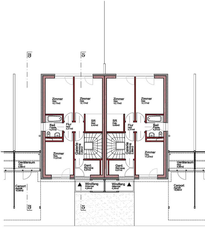
Die Reihenhäuser sind der erste Bauteil einer Gesamtbebauung mit 29 Wohneinheiten auf dem Nord-Süd orientierten Grundstück in Ortsrandlage. Entlang der Bundesstraße im Osten ist ein durchgehender dreigeschossiger Baukörper (mit Geschoßwohnungen) vorgesehen. Die Bebauung im Westen erfolgte hingegen durch kompakte Doppelhäuser, welche an einer Geländekante so platziert wurden, dass sie innerhalb der Anlage als eingeschossig wahrgenommen werden, sich jedoch zum Garten und nach Westen hin mit 2 Geschoßen orientieren.
Die Reihenhäuser sind als typengleiche Doppelhäuser konzipiert. Die Abstandsflächen dienen in der Erschließungsebene als gedeckte PKW-Abstellflächen und zur Auflockerung der Gesamtstruktur. Weiters wurde durch eine kompakte Gebäudeform darauf geachtet, die dahinterliegenden Bereiche geringstmöglich zu verschatten. Der Zugang erfolgt in der oberen Ebene, in welcher die Schlafräume untergebracht sind. Eine Stiege führt hinunter in die Gartenebene, in welcher sich neben Küche und Wohnzimmer auch noch Nebenräume befinden. Großflächige Verglasungen in der unteren Ebene öffnen den Wohnraum Richtung Garten. Zwischen den Baukörpern wurde ein geschützter und uneinsehbarer Außenraum entwickelt.
Die Gebäude wurden in Massivbauweise errichtet. Eine Optimierung der Spannweiten ergab, dass im Inneren keine zusätzlichen tragenden Elemente notwendig waren. Dadurch bestand ein hohes Maß an Flexibilität hinsichtlich der Mieterwünsche in Bezug auf die Wohnungsgrundrisse, bzw. in Bezug auf eine eventuell gewünschte spätere Adaptierung der Wohnungen.
Es wurden kompakte und daher energietechnische optimierte Volumetrien entwickelt. Die Dächer der Doppelhäuser wurden als begrünte Flachdächer ausgeführt. Die Häuser wurden als Niedrigenergiestandard geplant und alle Wohneinheiten mit einer kontrollierten Wohnraumbelüftung und Wärmetauschern ausgestattet.
- 年
- 2012







