Haus K-H
Wunsch der Bauherren war ein Haus für die 5-köpfige Familie in dem der Garten und die Jahreszeiten integriert werden. Daher wurde das Gebäude nicht parallel zur Grundstücksgrenze, sondern nach der Sonne ausgerichtet positioniert. Morgensonne, in der Küche und einigen Schlafräumen, Sonne den ganzen Tag in den Haupträumen und Abendsonne in ausgewählten Bereichen. Auch die im Keller befindlichen Aufenthaltsräume sollten Tageslicht bekommen, daher wurde die Höhenlage so gewählt, dass durch die Geländemodellierung an der Ostseite ein Lichthof entstand.
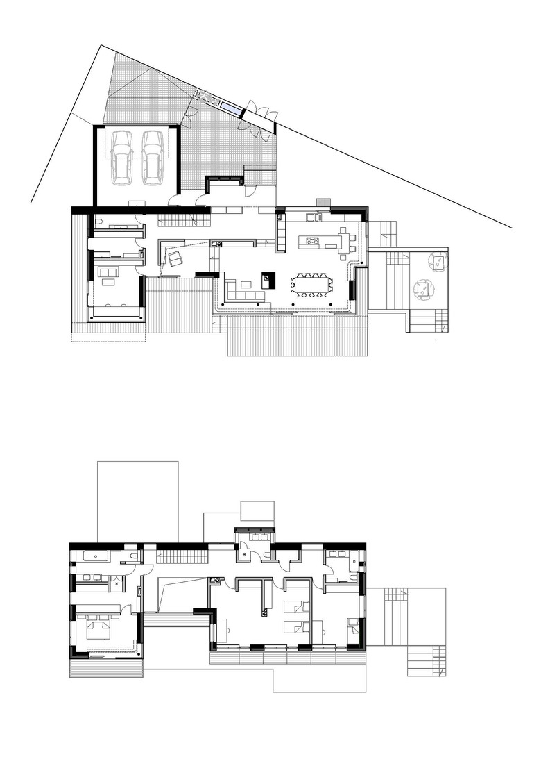
Das Erdgeschoß besteht in erster Linie aus einem großen Raum mit Zonen fürs Kochen, Essen und Wohnen. Dieser gemeinsame Wohnraum steht durch großflächige Verglasungen in enger Verbindung zu den Terassen- und Gartenflächen. Im Erdgeschoß finden sich zusätzlich noch ein Wirtschafts- und ein Büroraum. Im Obergeschoß befinden sich die Rückzugsorte, wie Schlaf- und Badezimmer.
Die Nordwand wurde in verputzter Massivbauweise, die restlichen Außenwände als mehrschaliger Aufbau mit hinterlüfteter Holzfassade ausgeführt.
- 年
- 2012









