Bergtischler

Rechberg, オーストリア
写真 © Sebastian Illichmann

Das "Bergtischler"-Haus ist rund 250 Jahre alt und war ursprünglich ein, einem benachbarten Bauernhaus zugehöriges, Backhaus. Der Ofenraum mit seinem geziegelten Gewölbe ist noch erhalten und wird jetzt als Küche genutzt. Das Haus wurde in den 1920er Jahren an der Nordseite mit einem Keller und einem darüber liegenden Zimmer erweitert und zu einem Wohnhaus mit Tischlerwerkstätte
umfunktioniert. Daher der Hausname.

2003 wurde das Gebäude durch seine jetzigen Besitzer erworben und umfangreich saniert. Im Zuge der Trockenlegung der Außenmauern kam auch die „Mühlviertler Bloßsteinmauer“ zum Vorschein. Das gesamte Haus (incl. Fenster, Böden, Innenputz und Elektrik) wurde damals erneuert.

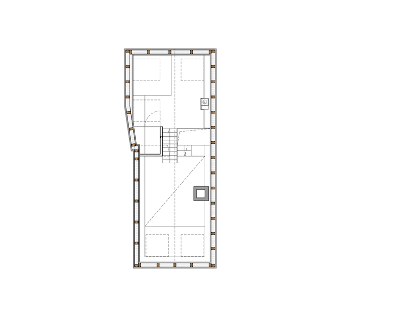
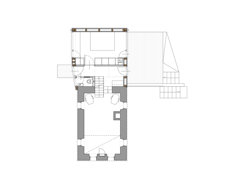
Nachdem das Grundstück 2010 an das öffentliche Kanalnetz und das Ortswasser angeschlossen wurde, fiel die Entscheidung zu einem umfangreichen Umbau. Die Zubauten aus den 1920er Jahren sowie der Dachstuhl waren in sehr schlechtem Zustand und wurden entfernt. Beibehalten wurden lediglich die aus dem 18. Jhd. stammenden Steinmauern. An der Nordseite mussten mehrere große Felsen gesprengt werden, um dort einen teilweise in den Hang eingegrabenen Keller betonieren zu können. Auf diesem wurde dann der Holzbau errichtet. Die Wandelemente sind vorgefertigte Pfosten-Riegel-Konstruktionen mit beidseitiger Beplankung und dazwischenliegender Wärmedämmung. Die Zwischendecke zwischen OG und DG ist eine Brettsperrholzdecke. Da auch für den Dachstuhl vorgefertigte Elemente verwendet wurden, konnte der gesamte Holzbau mit dichter Hülle innerhalb einer Woche errichtet werden. Bei der Dachkonstruktion handelt es sich um ein Sparrendach mit hinterlüfteter Blechdeckung (Prefa-Falzschablone). Die Fassade wurde mit horizontalen unbehandelten Lärchenlatten ausgeführt. Fenster und Außentüren sind aus geölter Lärche. Auch im Innenausbau (der zu einem großen Teil durch die Besitzer erfolgte) wurde viel Holz verwendet. Die Fußböden im alten Teil sind Lärche und im Zubau Tanne. Teilweise wurde Holz in Form von großformatigen Furnierplatten auch als Oberfläche der Innenwände eingesetzt. Die nordseitige Wand wurde innenseitig mit Lehmbauplatten beplankt. Beheizt wird das Haus mittels
Fußbodenheizung bzw. in Teilbereichen des alten Gebäudeteiles mit einer niedertemperaturigen Wandheizung. Die Wärmeerzeugung erfolgt mit einem Stückgutofen. Unterstützt wird das System durch einen Einzelofen und einen Tischherd der auch zum Kochen verwendet wird. Die Warmwassererzeugung erfolgt im Winter durch den Stückgutofen, im Sommer durch die Solaranlage.
Obwohl das Haus nur eine bebaute Fläche von gerade einmal 50m2 aufweist, konnte, durch die Einbeziehung des Dachraumes in das Raumvolumen des Wohnraumes eine großzügige Wohnatmosphäre geschaffen werden. Dies wurde durch die Schaffung einer offenen Schlafebene und einer Galerie noch verstärkt.

写真 © Sebastian Illichmann
写真 © Sebastian Illichmann
写真 © Sebastian Illichmann
写真 © Sebastian Illichmann
写真 © Sebastian Illichmann
写真 © Sebastian Illichmann
写真 © Sebastian Illichmann
写真 © Sebastian Illichmann
写真 © Sebastian Illichmann
写真 © Sebastian Illichmann
写真 © Sebastian Illichmann
図面 © Sebastian Illichmann
図面 © Sebastian Illichmann
図面 © Sebastian Illichmann
2014

illichmann-architecture によるその他のプロジェクト 

PHS-Stachegasse
Wien, オーストリア
Wohnanlage Korneuburg
Korneuburg, オーストリア
House RH
Hollabrunn, オーストリア
Villenanlage Hinterbrühl
Hinterbrühl, オーストリア
Villa Z
Wien, オーストリア