Regent
REGENT LIGHTING CENTER IN BASEL UMBAU / NEUGESTALTUNG SHOWROOM UND BÜROGEBÄUDE
Die Grundlage bildete der bestehende viergeschossige Bau auf dem Dreispitzareal der seit 1955 als Showroom und Bürobau genutzt wurde.
Die Aufgabe war die Neugestaltung des Baus 55 der Firma Regent Lighting. Im Zentrum stand die Neugestaltung des Showrooms der Büros und der Fassade. Mit dem Umbau sollte ein neues Erscheinungsbild geschaffen werden, welches die Philosophie der Firma repräsentiert.
Die Vorgabe war, dass der Rohbau erhalten bleiben muss.
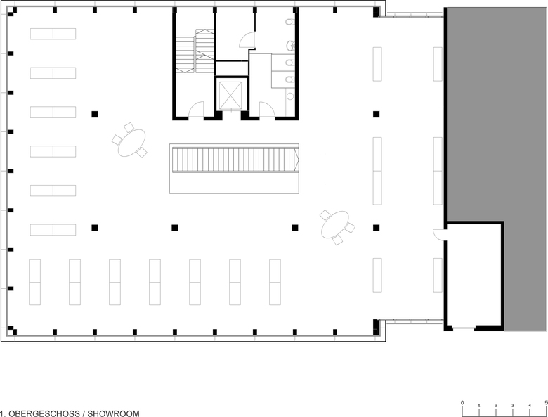
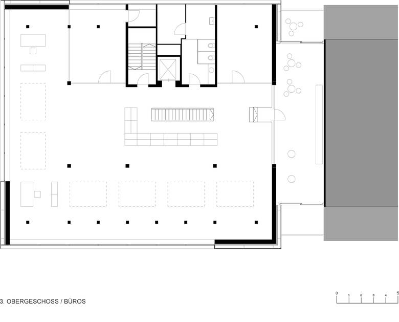
2 Showroomgeschosse im EG + 1. OG sowie 2 Bürogeschosse im 2. OG + 3. OG mussten übernommen werden.
Im Entwurfsprozess war leitend, dass die Architektur etwas mit Licht zu tun haben sollte. Inspiriert wurden wir durch Metafern wie Medusen oder Schneeiglus, Gebilde und Körper die nicht nur einen Ausdruck oder Gestalt haben. Wir suchten nach einem Ausdruck des Lichts.
Das Thema der Architektur ist das Licht selbst.
Die konzeptionelle Lösung besteht in der Einkleidung der bestehenden Gebäudestruktur mit einer neuen Fassadenhülle. Die Struktur bleibt als Ganzes erlebbar.
Die Transluzidität der Fassadenhülle schafft vielfältige Ausdrucksformen. Es entsteht ein Wechselspiel, ein Dialog von Innen nach Aussen, von Licht und Raum, der erlebt werden kann.
Die Fassade ist als klassisch hinterlüftete Fassade konzipiert. Ihre Eigenheit besteht darin, dass der Wetterschutz wie auch die Dämmung aus transluziden Kunststoffmaterialien bestehen, die das Licht von aussen und innen durchscheinen lässt.
Die Innenwand besteht aus Scobathermplatten, der Wetterschutz aus Scobalitplatten.
Die Materialien verkörpern eine anspruchvolle Einfachheit.
Dieses einfache Material und die kubische Erscheinungsform prägen den Charakter des Baukörpers nach aussen.
Die hautartige einladende Ausdrucksweise der Fassadenhülle lässt den Besucher erahnen, dass es ein Inneres gibt.
Die angedeutete Drehbewegung der oberen Fensterpartien regelt die Orientierung des Baues zum Hof.
Mit der Gegenläufigkeit der unteren Partie, wird der Besucher logisch zum Eingang geleitet.
Das Raumprogramm im Erd- und Obergeschoss besteht aus Showroom, Empfang, Ausstellung, Auditorium und Kaffee.
Dieser Bereich ist öffentlich zugänglich und wird durch Besucher frequentiert. Im 2. und 3. Obergeschoss befinden sich Büroräume, Prototypenraum, Kantine für Mitarbeiter, Bibliothek und Sitzungsräume.
- 年
- 2000








