catalan-architects.com
Profiles of Selected Architects
プロフィール
プロジェクト
求人情報
イベント情報
Magazine
ネットワーク
ログイン
登録
日本語
Català
Deutsch
English
Español
Français
Italiano
Nederlands
Português
中文
日本語
Català
Deutsch
English
Español
Français
Italiano
Nederlands
Português
中文
日本語
Catalan-Architects
プロフィール
建築家
ARCHITEKTUR Staehelin, Gisin + Partner AG
ウェブサイト概要
プロジェクト
チーム
設計競技(コンペティション)
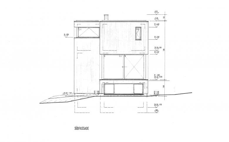
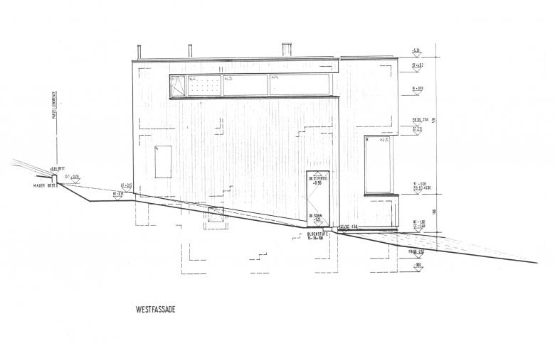
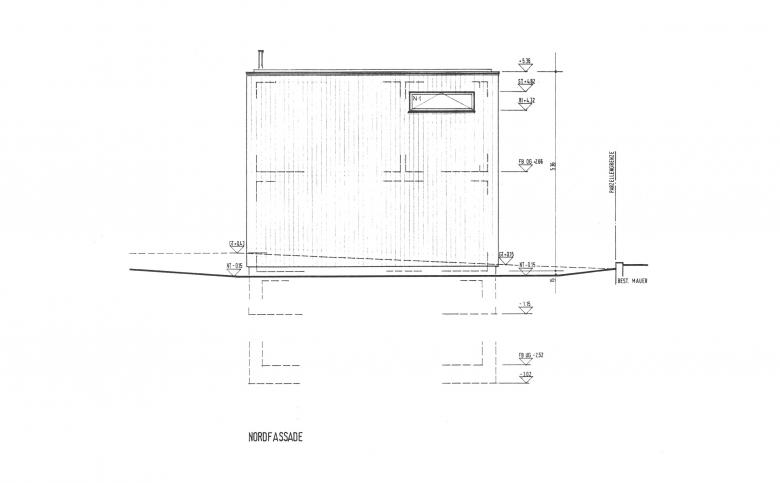
Lehmenweg, Haus Vögtli
Dornach, スイス
1998
Auszeichnung guter Bauten Kanton Solothurn
一世帯住宅
年
1998
ARCHITEKTUR Staehelin, Gisin + Partner AG によるその他のプロジェクト
Claragraben
Basel
Birmannsgasse
Basel-Stadt, スイス
Regent
Basel, スイス
Bistro Neuewelt
Muttenz, スイス
Grellingerpark
Reinach