Lernen im Park- Rochadegebäude in Modulbauweise
Am Rande eines Parks im belebten und beliebten Innenstadtviertel Essen Rüttenscheid ist in modularer Holzbauweise ein dreigeschossiger Pavillon entstanden, der zunächst als Rochadefläche für mehrere zu sanierende Schulen der Umgebung dient. Aber das Gebäude hat viel mehr zu bieten als nur Rochadefläche: Es wurde als flexibler Raum programmiert und konzipiert, der künftig auch für andere kommunale Nutzungen wie ein Bürgerzentrum oder eine Kita genutzt werden kann. Mit einem klaren Fokus auf Flexibilität und Anpassungsfähigkeit erfüllt das Gebäude auch höchste Anforderungen an Nachhaltigkeit und Zirkularität.
Das architektonische Konzept des Neubaus nutzt die Topografie des Geländes geschickt aus. Im südwestlichen Bereich des Baufeldes, wo das Grundstück eine Senke bildet, ragt das Gebäude über das Terrain hinweg. Mit seinen charakteristischen umlaufenden Balkonen erhält das Gebäude eine Leichtigkeit, die den Charakter eines Pavillons im Park verstärkt. Diese Gestaltung schafft nicht nur eine visuell kraftvolle und dabei spielerische Architektur, sondern bezieht den Außenraum des Parks für die Nutzung durch die Schüler*innen sowie die Bewohner*innen der Nachbarschaft ins Gesamtkonzept mit ein. Damit entsteht ein „Lernen im Park“, bei dem die Schüler*innen in einer natürlichen Umgebung ihre Pausen verbringen und das Gelände als erweiterten Lernort nutzen können.
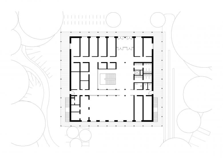
Die großzügig verglaste Eingangsseite lädt zum Betreten des Gebäudes ein. Das Foyer präsentiert sich offen und hell mit einer zentralen Treppenanlage, die Orientierung im Haus schafft. Von der Straße ergeben sich Durchblicke durch das Foyer und die Mensa bis ins Grün des Parks. In den Obergeschossen reihen sich sechs Klassenräume um die durch eine Dachverglasung tagesbelichtete Treppe sowie die Servicezonen. Die Besonderheit der Klassenräume sind die bodentiefen, zum Balkon öffnenden Fenstertüren. Der Balkon ist gleichermaßen Erweiterung des Lernraums nach außen als auch Fluchtweg. Die Außentreppen sind gleichermaßen Fluchttreppen als auch Shortcuts in den Schulhof. In den Lernclustern fördern viele verglaste Flächen die Kommunikation, das Parkett sorgt für Wohnlichkeit und Wohlbefinden, die Materialität ist insgesamt wertig und zeigt die Wertschätzung für Bildung als gesellschaftliches Gut bei gleichzeitig hoher Wirtschaftlichkeit des Gebäudes in Errichtung und Betrieb.
Das hohe Um- und Nachnutzungspotential, der Erhalt des bestehenden Baumbestands, die Verwendung von Holz als Hauptbaumaterial, der Einsatz von erneuerbaren Energien und daraus resultierend eine vorbildliche CO2-Bilanz leisten ihren Beitrag zur Nachhaltigkeit. Die Fassade des Gebäudes aus Holzwerkstoffplatten, die Fensterrahmen aus Holz und die Holzoberflächen im Inneren des Gebäudes schaffen eine warme, einladende Atmosphäre. Holz als Material sorgt dabei für ein angenehmes Raumklima, das sich positiv auf das Lernklima auswirkt.
Die Wandlungsfähigkeit des Gebäudes wird durch die modulare Bauweise unterstützt. Das Modulraster ermöglicht unterschiedliche Aufteilung bzw. Zusammenschaltbarkeit der Räume. Zur Erreichung einer hohen Nutzungsflexibilität können einzelne Bereiche unabhängig voneinander erschlossen werden.
Das Rochadegebäude in Rüttenscheid ist in vielerlei Hinsicht ein zukunftsweisendes Projekt: Es setzt in seiner architektonischen Gestaltung Maßstäbe. Mit der modularen Bauweise, dem nachhaltigen Holzbau und der Zirkularität ist es nachhaltig. Es ist resilient für zukünftige Nutzungsanforderungen und wird den vielfältigen Bedürfnissen der Schule und der Nachbarschaft gerecht. Und es versteht sich als Pioniergebäude der Stadt Essen, die sich mit großen Bedarfen konfrontiert sieht und diese in ähnlichen Totalunternehmerkonstellationen abwickeln wird. Dadurch stellt das Gebäude einen bedeutenden Beitrag zur nachhaltigen Stadtentwicklung in Essen dar.
- Anno
- 2024
- Project Status
- Costruito
- Cliente
- Immobilienwirtschaft der Stadt Essen
- Team
- Susanne Boss, Achim Eilmsteiner, Urs Bankmann, Marcelo de Lavor, Tamir E. Hoever, Thomas Reinke














