Villa N
Bergisches Land, Germania
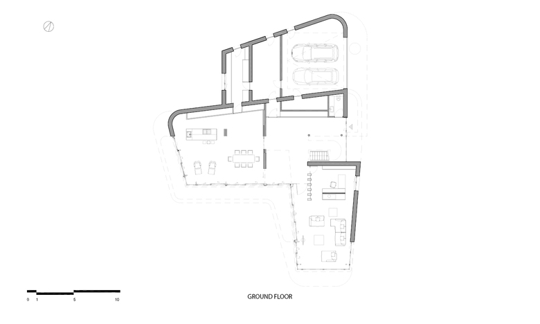
Villa N, a house for a young family is realized on a plot on the hillside with views of the meadows, pastures and forests of the landscape Bergische Land. The L-shaped building volume shows itsself extrovert to the south, the garden and the views and at the same time shields itself off with a soft elegant movement of white plastered walls to the buildings in the neighborhood. A deep, two storey high cut in the facade marks in a subtle way the entrance and provides in the closed facade the visual relation between interior and exterior. The building lives of the harmonious interaction of open glass-aluminum facades, white plastered, rounded wall surfaces and far cantilevered roofs. This makes the appearance of the building volume dynamic and fits the house in the hilly landscape.
Large floor to ceiling high glass walls on the garden side flow from one to the other façade and allow the sunlight to penetrate deep into the interior of all residential areas.
A spacious entrance hall in the heart of the L-shaped floor plan connects via a central void, the open living areas downstairs with the bedrooms upstairs. The spacious living kitchen with large dining area as a central place of daily life, can be opened with sliding doors to the hall and also be connected with the generous living room, which is open to the landscape too.
An elegant, restrained color palette and materials such as Bauhaus Travertine, Afromosia wood and champagne colored metallic powder coated aluminum profiles give the house its unique character.
- Architetti
- Coenen Sättele Architecten
- Anno
- 2018
Progetti collegati
Rivista
-
-
-
-
Un despatx madrileny signa un visionari catalitzador urbà en West Palm Beach
Andrea Pala | 29.11.2018 -
L'arquitectura de Francis Keré en escena en el Museu ICO de Madrid
Andrea Pala | 28.10.2018































