Casa Pallone
Claro, Svizzera
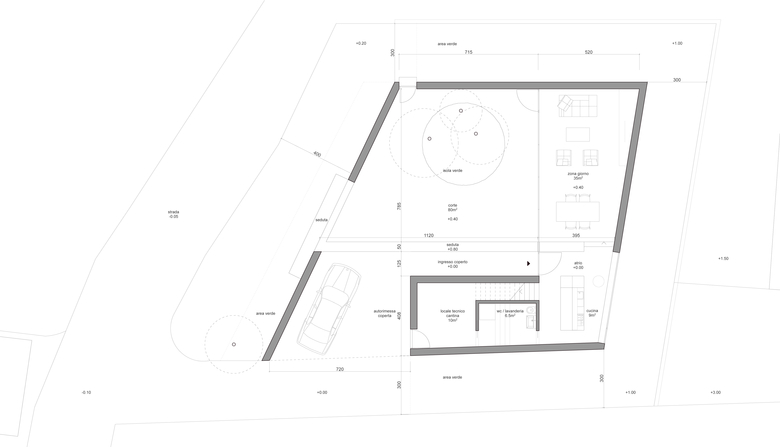
La nuova costruzione si integra volumetricamente con gli edifici esistenti nel contesto. Al contempo, assume un carattere tipologico che permette di soddisfare le esigenze di privacy al quale aspira la committenza e parimenti qualificare lo spazio pubblico della strada verso il quale si rivolge: un muro di cinta perimetrale definisce sia il limite del costruito sia uno spazio esterno protetto e privato (corte interna), permette dei punti di vista precisi dall’interno della casa verso il contesto paesaggistico di pregio circostante, e pone le basi per un arredo urbano puntuale che decora lo spazio stradale.
- Architetti
- Inches Geleta
Progetti collegati
Rivista
-
-
-
-
Un despatx madrileny signa un visionari catalitzador urbà en West Palm Beach
Andrea Pala | 29.11.2018 -
L'arquitectura de Francis Keré en escena en el Museu ICO de Madrid
Andrea Pala | 28.10.2018














