Mitarbeiterrestaurant Rohde & Schwarz
München, Germania
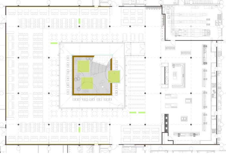
Das neue Mitarbeiterrestaurant befindet sich im Tiefhof/1. Untergeschoss des Neubaus MÜ15 auf dem Rohde & Schwarz Campus mit einem umlaufenden Speisesaal mit Free Flow Bereich und dem separaten Küchentrakt.
Über vier Zugänge innerhalb des Gebäudekomplexes und die repräsentative, beheizbare Außentreppe vom Rohde&Schwarz Campus kann das Restaurant erreicht werden.
Der Bezug zwischen dem Innenraum des Restaurants und dem gestalteten Innenhof ist ein wichtiger Ansatz des Entwurfskonzepts. Die offene Fassade mit der großflächigen Verglasung ermöglicht den Einfall von Tageslicht und lässt die Besucher des Mitarbeiter Restaurants die verschiedenen Tagesstimmungen und saisonalen Unterschiede live miterleben.
710 Sitzplätze im Innenraum und 60 Plätze im Innenhof verteilen sich über verschiedene Bereiche und ermöglichen unterschiedliche Aufenthaltsqualitäten für verschiedene Nutzungen. Entlang der Wände bieten durch weiße Raumteiler abgegrenzte Nischen eine Form von Privatheit, während die runden Sitzplätze an den Fensterflächen dem Motiv der italienischen Piazza angelehnt sind. Die zwei Oktoberfestboxen sind separat für kleinere Gruppen/ interne Veranstaltungen nutzbar. Entlang des Free Flow Bereichs runden Hochtische mit schlichten Barkhockern für spontane Besprechungen und Kaffeepausen das Raumangebot ab.
Die lichte Raumhöhe von 3,00 Metern bis 4,05 Metern ist zum Großteil mit einer weißen Akustikdecke abgeschlossen, die die großzügige Raumwirkung noch verstärkt. Die integrierte Technik aus Zu- und Abluft, moderner Veranstaltungstechnik mit Ton, Beamer und ausfahrbarer Leinwand lässt multifunktionale Nutzungen der Fläche zu.
Entlang der Wände sorgen dimmbare Lichtvouten für atmosphärische Beleuchtung, während in den mittleren Bereichen in die Decke integrierte Lichtspots warmes Halogenlicht spenden. Entlang der raumhohen Fassade ergänzen dekorative Leuchten die hochwertige Möblierung.
Das Free Flow Konzept ermöglicht einen frei begehbaren Speiseentnahmenbereich mit verschiedenen Ausgabestationen - von süß bis salzig, kalt und warm. Der Frontcooking Bereich un der Pizzaofen runden das vielfältige Angebot ab. Garderoben an allen Eingängen und Kartenaufwerter im Free Flow Bereich ergänzen die Infrastruktur.
Die Farbwahl und Materialität der Gestaltung lehnt sich an das CI (Corporate Identity) von Rohde&Schwarz an. Die warmen Brauntöne des lebendigen Nußbaumholzes an Möbeln, Hochtischen und auf den Bodenflächen werden durch rückseitig lackierte Glasflächen, schwarzen Granitplatten aus Nero Assoluto und großflächige Bodenfliesen ergänzt. Die weiß lackierten Flächen der Raumteiler und die weiß beschichteten Tische mit den schlichten weiß-braunen Stühlen und Barhockern sowie die farblich passenden Lederflächen auf den Sitzbänken bilden den notwendigen Kontrast. Ein Highlight sind die umlaufenden Leuchtkästen an den Rückwänden, deren alpines Motiv als Ergebnis der Mitarbeiterbefragung hervorgegangen ist.
Aufgabe
Gastronomie, Großküche
Bauherr
Rohde & Schwarz, München
Gesamtfläche
1.580 qm
Raumhöhe im Speisesaal
3,25 Meter
Sitzplätze im Restaurant
608
Stehsitzen Hochtische
102
Sitzplätze Innenhof
60
Möbel
Nußbaum (geölt) für die Hochtische und Einbaumöbel im Free Flow Bereich, Lederbezüge auf den Sitzbänken, weiß lackierte Oberflächen für Tische und Raumteiler, Glas (rückseitig lackiert), schwarzer Granit Nero Assoluto im Free Flow Bereich
Bodenbelag
Stäbchenparkett Nußbaum geölt, großformatige Fliesen
Fotograf
Christian Hacker
- Anno
- 2013
Progetti collegati
Rivista
-
-
-
-
Un despatx madrileny signa un visionari catalitzador urbà en West Palm Beach
Andrea Pala | 29.11.2018 -
L'arquitectura de Francis Keré en escena en el Museu ICO de Madrid
Andrea Pala | 28.10.2018


























