Belétage
Berlin, Germania
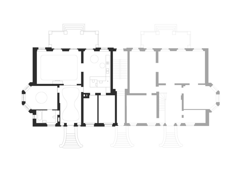
Das von den Architekten Grisebach und Rehmann 1923 geplante und heute denkmalgeschützte Mietshaus vereint Typologien des Wohnungsbaus der Reformbewegung mit gestalterischen Rückgriffen auf die Formensprache des Barock. Die Sanierung macht die ursprüngliche reformative Raumidee der Belétage wieder erlebbar. Minimalistische innenräumliche Eingriffe überhöhen die bereits der Ursprungskonzeption eingeschriebene Dualität moderner Raumkomposition und „tradierter Oberfläche“ zu einem Raumerlebnis aus Atmosphäre und Irritation.
- Architetti
- Ludloff Ludloff Architekten
- Anno
- 2012
- Cliente
- privat
Progetti collegati
Rivista
-
-
-
-
Un despatx madrileny signa un visionari catalitzador urbà en West Palm Beach
Andrea Pala | 29.11.2018 -
L'arquitectura de Francis Keré en escena en el Museu ICO de Madrid
Andrea Pala | 28.10.2018












