Wugian Sports Park
The design of Wuqian Gymnasium Park released by POA Architects led by Pan Chengshou.
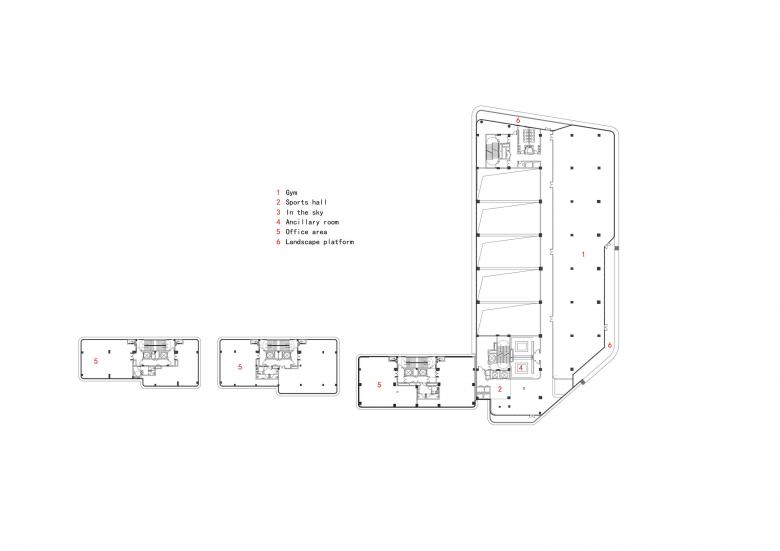
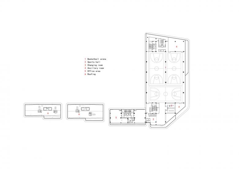
The sports park covers an area of about 12,000 square meters, with a total construction area of about 35,000 square meters, including CBA training hall, badminton hall, table tennis hall, swimming pool, rooftop sports ground, supporting businesses, etc. POA's design combines the sports park with the natural terrain landscape, creating a stepped mountain landscape art in the heart of the city.
Pan Chengshou: ‘We dream of creating not only an urban space about sports and ecology, but we also want to turn it into a unique earth art park that establishes a vein of cultural heritage in relation to the city's landscape history.’
Cangnan, China, a famous city of landscape and culture with thousands of years of history, is rich in traditional culture and philosophical thinking, with beautiful mountains and water, and more than 50% green coverage. The city's deep historical and regional culture, as well as its natural landscape, are its most valuable resources, and POA envisions creating an organic and dynamic landscape art in the modern city, as if it were a reproduction of the natural landscape, and a spiritual home for the city's future.
Surrounded by high-density neighbourhoods, the sports park is surrounded by people gathering from the city, with an extra-long urban display surface and an unprecedented open view; the building form is undulating, like the continuous flow of the mountainous terrain where it is situated, forming a visual landscape in the city of forests and peaks, and different heights from near and far. People can stop and climb in the building. The roof of the building is like a flying stone, crowning the building as the crown of the city. It makes people want to get close and touch it to find out the reality.
The sports park breaks the traditional independent spatial relationship of the stadium and transforms it into a more continuous and complex spatial combination. The interior and exterior of the building are connected with nature, and people in the building are immersed in the mountain water flow at any time. The interplay of shapes and forms between the mountains and the water allows people to walk up the stairs or enjoy the scenery from the roof garden. The rooftop city crown is also home to the CBA Basketball Arena, where at least three or more important matches of the national basketball team, the CBA or the WCBA are played every year. In the clouds of the city, sportsmen and women fight for their dreams and honour.
Wuqian Sports Park abandons the traditional modern city construction mode of big square and big symbol, takes earth art and natural landscape as the starting point of urban space design, and pursues the consistency of people, nature and culture in the city at the spiritual level. Athletics has been the slogan of ‘Higher, Faster, Stronger’ in the early stage of modern civilisation, which is also in line with the value orientation of challenging and conquering nature in the city construction in the past century or so. But the future of urban development should open a new stage, the organic symbiotic relationship between man and nature as a new pursuit of the goal. Pan Chengshou said: ‘The relationship between human beings, architecture and nature is not only about humanism, godliness and sustainable development, but also about the spirit and mood, which is the vitality and philosophy embedded in the history of this land, and needs to be inherited and developed in the future of the city.’
- Anno
- 2027
- Project Status
- In costruzione
- Cliente
- Zhejiang Qianming Sports Culture Development Co.
- Team
- PAN Chengshou(Partner), LINHAO, Yang Jing, Wang Fuhong, Zeng Lin, Jin Feifei
- Consultant
- Zhejiang Natural Architecture Design Co.
- Construction Engineer
- Zhejiang Liye Construction Group Co.


















