Mensa der Schule auf dem Tempelhofer Feld
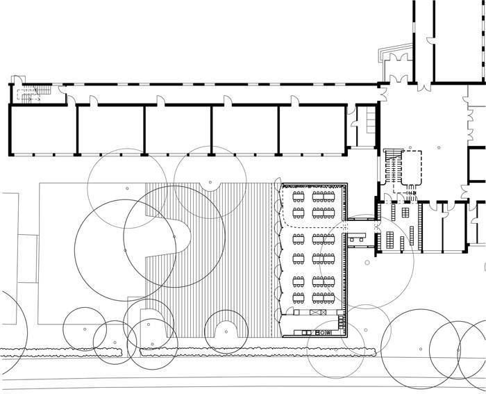
Der Mensaneubau erweitert das Gebäudeensemble der Schule auf dem Tempelhofer Feld in Berlin Tempelhof. Die nach dem 2. Weltkrieg errichtete Grundschule folgt mit ihren von den Straßenräumen abgerückten Gebäudekubaturen, den städtebaulichen Idealen der 50er Jahre. Die neue Mensa vervollständigt den bestehenden, windmühlenartig angelegten Hauptbau um den vierten Flügel, wobei die Typologie der durchgrünten Stadt gestärkt wird, der Parkcharakter des Grundstücks setzt sich im Innenraum fort. Die sichtbaren filigranen Holzspanten des Dach- und Wandtragwerks steht im direkten Bezug zur Lage des Gebäudes unterhalb der Baumkronen, und kann als zweites "Astwerk" gelesen werden. Die Glasfront erweitert den Speiseraum zu einem baumbestandenen Holzdeck, die Grenzen von gewachsenem Holz und Holzkonstruktion werden bewusst überlagert.
- Anno
- 2009
- Cliente
- Bezirksamt Tempelhof-Schöneberg
- Umfang
- 280 qm BGF




