Vorprojekt Alterszentrum Tschann

Zentrum Tschann
Visualizzazione © Lauber Maier Architekten AG
Vorhalle
Visualizzazione © Lauber Maier Architekten AG
Umgebung / Situation
Disegno © Landformen AG
Untergeschoss
Disegno © Lauber Maier Architekten AG
Atrium
Visualizzazione © Lauber Maier Architekten AG
Erdgeschoss
© Lauber Maier Architekten AG
Saal
Visualizzazione © Lauber Maier Architekten AG
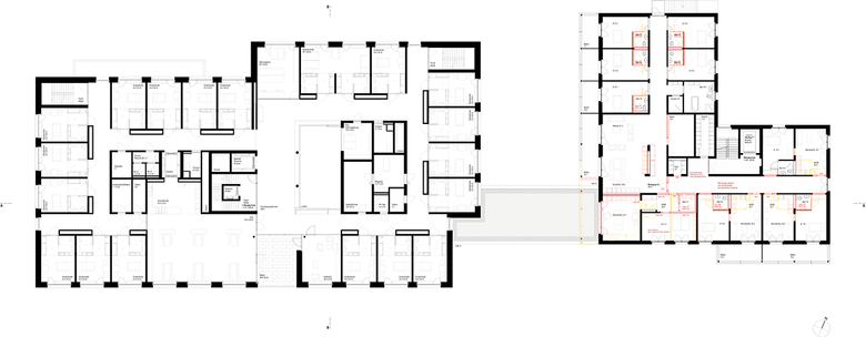
Regelgeschoss 1-4
© Lauber Maier Architekten AG
Attika
© Lauber Maier Architekten AG
Längsschnitt
© Lauber Maier Architekten AG
Fassade Tschannplatz
© Lauber Maier Architekten AG
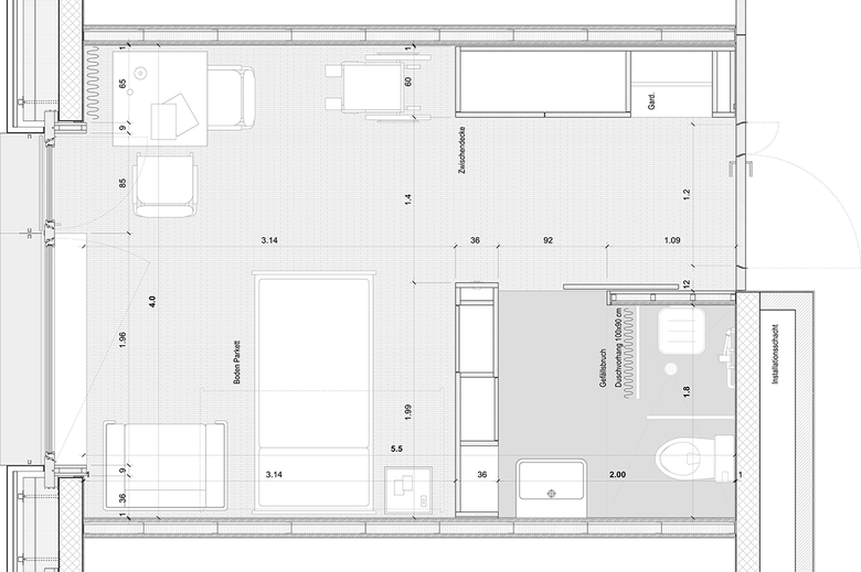
Einzelzimmer
© Lauber Maier Architekten AG
Anno
2018
Project Status
Progetto
Cliente
Gemeinde Buchrain
Team
Basler & Hofmann Innerschweiz AG, R+B engineering ag, Wirthensohn AG Gebäudetechnik-Engineering, JOP Josef Ottiger + Partner AG, Pirmin Jung Büro für Bauphysik AG, Albert Pusch AG Sicherheitsplanung & Consulting, Creative Gastro Concept, Landformen AG
Kostenplaner
Büro für Bauökonomie AG

Altri progetti di Lauber Maier Architekten AG / ETH FH SIA 

Projektwettbewerb Schulhaus Brühl
Solothurn, Svizzera
Remisen SBB Historic
Olten, Svizzera
Gesamtplanung Bahnhof Küssnacht a. Rigi
Küssnacht a. Rigi, Svizzera
Umbau Stall Mooshof
Beromünster, Svizzera
Villa Rabenhorst 2. Etappe
Fürigen, Svizzera