School extension
Il concorso richiede nuovi spazi da destinare a mensa e doposcuola per le scuole elementari del quartiere di Viganello.
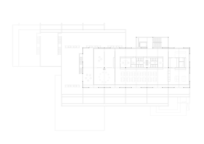
Si è trattato di ampliare l’edificio, progettato nel 1974 dall’architetto Sergio Pagnamenta, per inserire i nuovi contenuti adatti ad ospitare almeno 100 bambini.
Il volume d’ampliamento è il coronamento dello stabile esistente.
Si tratta difatti di un elemento leggero, un finale o “attacco al cielo”, che permette di relazionarsi, sia a livello compositivo sia in termini cromatici e di materiale, con il volume scolastico sul quale si poggia.
Si compone di un’intelaiatura strutturale che ne definisce l’aspetto formale – e di fatto la facciata – e di uno spazio riscaldato arretrato rispetto al perimetro che determina due zone che riprendono il ritmo e la disposizione planimetrica dei piani sottostanti: un’area a Sud adibita ad orto o terrazza verde e uno spazio coperto verso Ovest in relazione con la sala modulabile del doposcuola.
Il concetto costruttivo è concepito in modo sobrio e razionale al fine di ottimizzare le dinamiche di cantiere da un lato e garantire la flessibilità richiesta dall’altro, in previsione di eventuali ampliamenti o interazione tra spazi (mensa – attività doposcuola).
La modularità degli elementi costruttivi, prefabbricati, costituisce inoltre un importante beneficio dal profilo economico e logistico; permette difatti di ridurre sensibilmente i tempi di cantiere, con evidenti vantaggi a livello economico, di immissioni ed ecologia di cantiere e, non da ultimo, per l’integrazione del programma lavori all’interno del calendario scolastico.
- Anno
- 2017-2020
- Project Status
- In costruzione
- Team
- matteo inches, nastasja geleta



