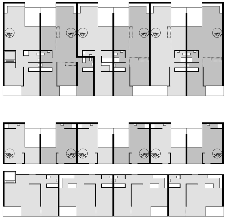
ASPAN Logements urbains en zone de bruit

Servette, Genève, Svizzera

Concours ASPAN 1 er prix pour la Suisse site Genève. 70 logements, ateliers d'artistes, locaux services sociaux, commerces

Anno
1990

Altri progetti di Giovanoli-Mozer architectes 

Transformation d'une ferme en logement
Moiry, Svizzera
Quartier Sully 3 106 logements
La Tour-de-Peilz, Svizzera
EPFL Quartier La Pala 1200 logements
Lausanne, Svizzera
Ensemble Résidentiel Cézille
Bassins, Svizzera
Couvert Forestier
Froideville, Svizzera