Wohnbebauung „Am Hofgarten"

Kempten, Germania
Foto © Florian Wendel

Mit dem neuen Quartier wird eine lesbare Identität des Ortes unter besonderer Berücksichtigung der stadträumlich sensiblen Lage am Hofgarten geschaffen. Das Gartenmotiv ist eine Referenz an die ehemals vorhandenen Klostergartenstrukturen. Es geht um die selbstverständliche Einfügung in den heterogenen Kontext. Die Vorzüge parkartiger Großzügigkeit und stadträumlicher Fassung werden verbunden mit den Qualitäten privater Wohn- und Freiraumflächen, die nicht Widerpart sondern Ergänzung der öffentlichen und halböffentlichen Bereiche sind. Der Haustyp der Stadtvilla wird neu interpretiert.

Ein zunächst strenges Ordnungssystem im Maßstab der kleinteiligen Baustruktur der Stiftsstadt definiert kleinste Module für die neue Bebauung. Durch Weglassen oder Verschieben von Baukörpern entstehen Freiflächen unterschiedlicher räumlicher Ausprägung, durch lineare Addition von Baukörpern wird der Bezug zur Dimension der Neustadt-Bebauung hergestellt. Aufgrund der klein parzellierten Struktur lässt sich das Quartier in variablen Bauabschnitten entwickeln.

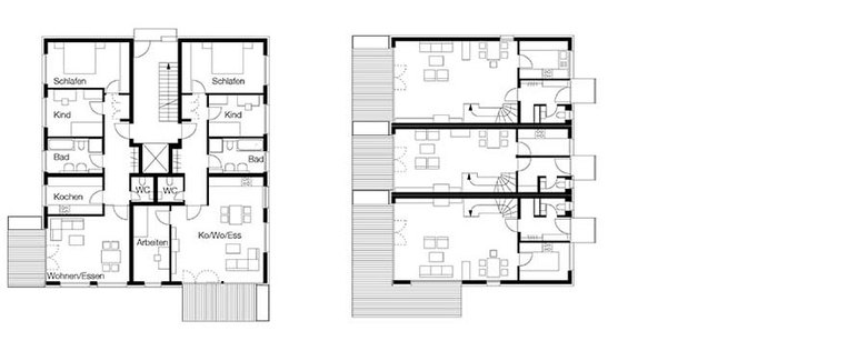
Die Baukörper werden durch plastische Modellierung optimiert hinsichtlich individueller Orientierung der Wohnungen bei Einhaltung der Abstandsflächen und maximaler Dichte. Verschiedene Wohnformen werden integriert, wie Reihenhäuser, Maisonetten, Geschosswohnungen, Penthäusern oder altengerechte Wohnungen. Es entsteht ein modulares Hauskonzept mit vielen Variationen.

In integraler Ergänzung der Baustrukturen wird der Freiraum gestaltet mit Feldern unterschiedlicher räumlicher Ausrichtung, Ausformung und Funktion. Quervernetzende Gassen erschließen die Häuser von der privaten Wohnstrasse an der Herrenstraße. Sie weiten sich auf zu halböffentlichen Quartiersplätzen und Spielflächen, gefasst von blickdichten Hecken und Obstspalieren, welche die privaten Gartenzonen abschirmen. Die abwechslungsreiche, offene Raumstruktur stiftet Identität und ermöglicht Kommunikation. Als prägendes quartierbezogenes Gestaltungselement des Freiraums werden mittelgroße Obstgehölze gepflanzt. Sie stehen im spannungsvollen Kontrast zum schützenswerten imposanten Baumbestand, welcher in das Freiflächen- und Erschließungskonzept integriert ist und das neue Quartier selbstverständlich in den übergeordneten Kontext des Hofgartens und das angrenzende stadträumliche Gefüge einbindet.

Aufgabe
Wohnbebauung "Am Hofgarten" in Kempten, Realisierung von 17 Stadthäusern mit 142 Wohnungen und Tiefgaragen in zwei Bauabschnitten

Auftraggeber
Wohnen am Hofgarten GbR,
die Sozialbau, Kempten
und BSG-Allgäu

Architekten
F64 Architekten
Kempten

Wettbewerb
1. Preis Sommer 2004

Beauftragte Leistung
LPH 1-5 HOAI
Baukünstlerische Oberleitung

Projektzeiten
Planung: ab 2004

1. BA
8 Stadthäuser mit Tiefgarage,
58 Wohnungen, 62 Tiefgaragenstellplätze

Bauzeit
2005-2007

2. BA
9 Stadthäusern, Tiefgarage
84 Wohnungen, 93 Tiefgaragenstellplätze

Bauzeit
2008-2011

BRI
46.000 m³

BGF
25.104 m²

HNF
12.000 m²

Baukosten
12,3 Mio. € inkl. MwSt.

Energiestandard
EnEV 2007 -45%

Tragwerksplanung
Ingenieurbüro Hartmann & Walter
Kempten

HLS-Planung
Ingenieurbüro Güttinger
Kempten

Elektro-Planung
Ingenieurbüro Lippert
Kempten

Bodengutachten
ICP Geologen
Altusried

Freianlagenplanung
realgrün Landschaftsarchitekten
München

Foto © Florian Wendel
Foto © Florian Wendel
Foto © Florian Wendel
Foto © Florian Wendel
Foto © Florian Wendel
Foto © Florian Wendel
Anno
2011
Cliente
Wohnen am Hofgarten GbR, die Sozialbau, Kempten, und BSG-Allgäu

Altri progetti di f64 Architekten und Stadtplaner GmbH 

Sport- und Mehrzweckhalle Stadtbergen
Stadtbergen, Germania
Nordic Zentrum Oberstdorf
Oberstdorf, Germania
Erweiterung Werk II Fa. elobau
Leutkirch, Germania
Wohnhaus B12
Altusried-Binzen, Germania
Neubau des Einfamilienhauses in hybrider Bauweise
Ermengerst, Germania