Robert-Schuman-Mittelschule
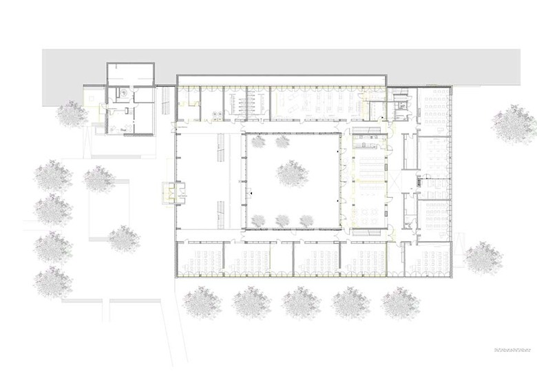
In der Planung schafft die Erweiterung Flächen, um den gestiegenen Raumbedarf abzudecken, bislang ausgegliederte Bereiche an der Schule unterzubringen, den Praxisklassenunterricht auszubauen und bislang an der Schule nicht vorhandene Räume für den Musik- und Zeichenunterricht einzurichten. Die neuen Räumlichkeiten gliedern sich unmittelbar an das Bestandsgebäude an, um baukörperlich und funktional eine Einheit zu bilden. Nach den Energieleitlinien der Stadt Kempten wird der Erweiterungsbau im Passivhausstandard konzipiert. Die Energieeffizienz manifestiert sich bereits im städtebaulichen Konzept und wird konsequent in Gebäudehülle und Anlagentechnik umgesetzt.
Entsprechend der Anforderungen an zeitgemäße Unterrichtsräume und neue Schulkonzepte wird das Bestandsgebäude umgebaut. Der Verwaltungs- und Lehrerbereich wird im Gebäude verlagert und zusammengefasst. Das Gebäude wird behindertengerecht umgebaut, um in Inklusionsklassen die Einbeziehung behinderter Kinder in den Regelunterricht zu ermöglichen. Durch den Einbau der Mittagsbetreuung und ergänzender Aufenthaltsflächen kann künftig Ganztagesunterricht angeboten werden.
Das Bestandsgebäude muss wegen bautechnischer Mängel in der Standsicherheit und beim Brandschutz einer Generalsanierung unterzogen werden. Alle Flächen werden dabei bis auf den Rohbau rückgebaut und einer Beton- und Brandschutzsanierung unterzogen. Weiterhin wird das Gebäude in Anlehnung an den Passivhausstandard der Erweiterung energetisch saniert.
Die Gesamtmaßnahme wird in zwei Bauabschnitten bei jeweils laufendem Schulbetrieb realisiert.
Aufgabe
Erweiterung, Umbau und Generalsanierung
Auftraggeber
Stadt Kempten, Hochbauamt
Beauftragte Leistung
LPH 1-9 HOAI
Projektzeiten
Planung: ab 01/2008 - 08-2011
1. BA Erweiterung der Mittelschule um Klassen- und Fachklassenräume
Bauzeit: 09/2011 - 08/2012
2. BA Umbau und Generalsanierung des Bestandsgebäudes und Einbau von Mittagsbetreuung für Ganztagsschule
Bauzeit: 08/2012 - 08/2013
Projektgröße
1. BA
BRI: 5.556 m³
BGF: 1.475 m²
2. BA
BRI: 16.407 m³
BGF: 4.289 m²
Baukosten
KGR 300+400
5,3 Mio. € inkl. MwSt.
Energiestandard
Altbau: Sanierung mit Passivhauskomponenten
Neubau: Passivhaus
Projektbeteiligte
Tragwerksplanung: Dr. Schütz Ingenieure, Kempten
Passivhausplanung: Herz & Lang GmbH, Weitnau
HLS-Planung: Hirdina Ingenieurbüro, Betzigau
Elektro-Planung: IBS, Kempten
Freianlagenplanung: Willi Müller, Kempten
- Anno
- 2013
- Cliente
- Stadt Kempten, Hochbauamt







