Plus Energie Haus
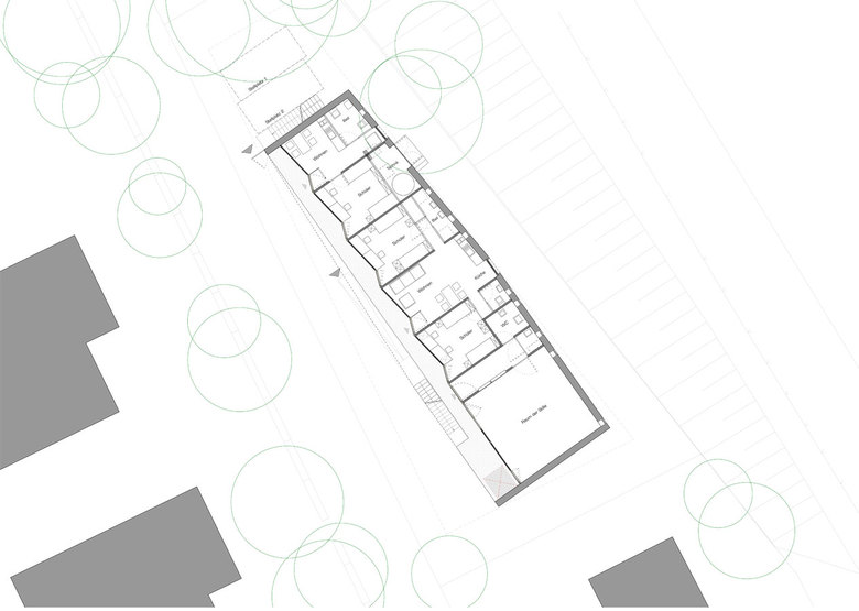
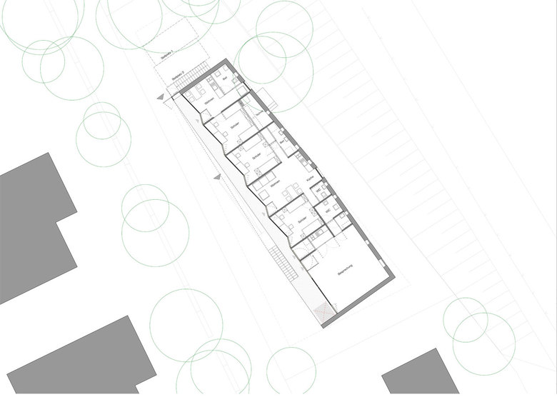
Auf dem Gelände des Internats Schloss Hansenberg soll ein weiteres Wohn- und Funktionsgebäude entstehen. Dieses enthält 4 Wohneinheiten für Schüler des Internats, einen Arbeitsraum für Lehrer, einen Raum der Stille für Schüler sowie Neben- und Funktionsräume. Der Entwurf sieht einen zweigeschossigen Riegel vor, der sich nach Westen hin und mit einer gefalteten Glasfassade öffnet. Die Außenwand nach Norden ist verdreht, um der unterschiedlichen Raumtiefe Rechnung zu tragen. Kleinere Öffnungen ermöglichen gezielte Ausblicke. Die kompakte Gebäudeform verringert die Transmissionsverluste. Das Gebäude soll in Holzbauweise errichtet werden, was die Vorteile der Vorfertigung, der Nutzung einheimischer Rohstoffe und gute Dämmeigenschaften hat. Das energetische Ziel ist der Plus-Energie-Standard.
Bauherr
Land Hessen, vertreten durch das HBM (Bauherr)
Pfeil & Koch ingenieurgesellschaft GmbH & Co. KG (Partner)
Direktauftrag
Wohn- und Funktionsgebäude
Planung u. Fertigstellung
2011-2014
BGF
506 m2
- Anno
- 2014
- Project Status
- Costruito









