Memphis Teacher Residency
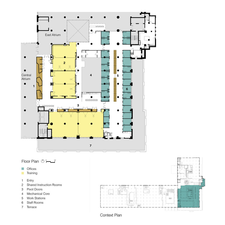
A faith-based, non-profit organization required a new space for recruitment, training, and supporting teachers through an urban teacher residency graduate program. Their new space is positioned between a public, large central atrium and more intimate atrium of a multi-million square foot vertical village (previously a large distribution warehouse.) Their new home is made up of three functions: staff offices, flexible training rooms, and community areas for breaks and collaboration. The space is also open to a large private terrace with outdoor seating for small meetings or to recharge throughout the day.
Along the central atrium, a multi-faceted wooden form negotiates the interaction and entrance between the semi-public functions within this agency and the publicly accessed central atrium. This component anchors the main entrance, while also providing opportunities for storage, gathering, retreat, agency signage, and building systems to be more concealed. As a procession element that leads patrons through the space, a deep, linear storage wall for training room furniture is lined by a combination of wood doors and fixed panels. Through the staff work area, a central community table with overhead storage provides a place for collaboration, flexible gathering, and material preparation and distribution. These wood components act as connective tissue that weave throughout the distinct programmatic zones as both a threshold and a guide.
Throughout the design for this space, the client’s distinct use of book icons to express a source of knowledge was translated into an architectural language and spatial detailing that colors and meters the space. As a means to celebrate the existing structure and its contextual contribution to Memphis, the restrained material pallet greatly contrasts the gritty concrete and textured brick – including marks and scars documenting their history. The existing column capitals are illuminated through the space and carefully bisected by walls and ceiling planes. Sealed concrete floors reveal years of use and are supplemented by painted graphics on the floor at common entrances to respond to the prior use as a warehouse and distribution facility.
This new space is located in the heart of the city, which provides this community-focused organization with a new tool for recruitment, where residents can live ‘on campus’—Levels 7-10 in the vertical village are apartments—in a diverse environment that enriches their academic endeavors.
The total project square footage is 21,448. A consultant for this project includes OGCB for Engineering. Grinder, Taber & Grinder, Inc. was the general contractor for this project. All photos by archimania.
- Anno
- 2017
- Project Status
- Costruito





















