Landgericht Magdeburg
Im Februar 2015 gewannen TCHOBAN VOSS Architekten das ausgelobte VOF-Verfahren für die Generalsanierung des Landgerichts Magdeburg. Das Gebäude befindet sich im Stadtteil Sudenburg der sachsen-anhaltischen Landeshauptstadt und entstand zwischen 1900 und 1906, nach einem Entwurf des Regierungsbaurates Hermann Angelroth (1853-1901) und des Geheimen Oberbaurats Paul Thoemer (1852- 1918) aus dem Preußischen Ministerium der öffentlichen Arbeiten in Berlin.
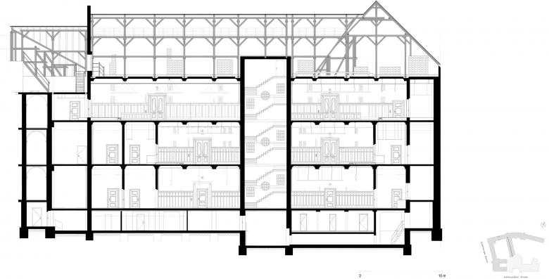
In enger Zusammenarbeit mit der Unteren Denkmalschutzbehörde – Landeshauptstadt Magdeburg und dem Landesamt für Denkmalpflege und Archäologie Sachsen-Anhalt erfolgten bis 2020 die umfangreichen, substanzerhaltenden Maßnahmen zur Wiederherstellung des historischen Erscheinungsbildes des im Stil des Historismus gehaltenen, ehemaligen Justizpalasts. Die Sanierungs- und Baumaßnahmen betrafen die denkmalgeschützten Gebäudeflügel inklusive der Büroräume, Verhandlungssäle, Verwaltungsbereiche, Flure und Sozialbereiche, sowie die Fassaden und die Neugestaltung der Außenanlagen.
Erfolgreich konnten bei der Generalsanierung die hohen denkmalpflegerischen und restauratorische Anforderungen mit den aktuellen Anforderungen an eine moderne Daten-, Kommunikations- und Sicherheitstechnik, Schallschutz und Raumakustik sowie an einen zeitgemäßen energetischen Ausbau in Einklang gebracht werden. Anbindungs- und Schnittstellenbereiche, vorwiegend für die technische Medienversorgung zwischen Altbau und Neubau, wurden angepasst. Lüftungsanlagen wurden modernisiert.
Einen bedeutenden Teil der Baumaßnahmen nahm die denkmalgerechte Sanierung der Fassaden ein. Im Bereich der Hauptfassaden sind sie Fassaden teilweise oder vollständig mit Granit und Sandstein verblendet, an Nebenfassaden wurde Klinker als Sockelausbildung oder Fenstergewände eingesetzt. Nach der Schadens- und Maßnahmenkartierung wurde ein detaillierter Maßnahmenplan zum Erhalt des Materials, wie Einsatz von Vierungen und von Steinersatz erarbeitet: Grundsätzlich wurde auf einen Austausch von Natursteinelementen, wie z. B. Gewänden verzichtet. Für den Teilersatz der Klinker wurden passende Steine bemustert. Der Außenputz wurde dem Bestandsputz nachgestellt und erhielt eine neue Fassung.
Die Dächer wurden nach historischem Vorbild mit auf offenem Feuer gebrannten Biberschwanzziegeln gedeckt.
Die bauzeitlichen Massivdecken sind, außer über den großen Sälen, als Koenensche Voutenplatte ausgeführt. In den Sälen wurden Kleinesche Ziegeldecken eingesetzt. Diese zur damaligen Zeit modernen Konstruktionen gewährleisten auch heute noch die statischen Anforderungen, entsprechen aber nicht mehr den aktuellen Brandschutzanforderungen. Mit Untersuchungen und Kompensationsmaßnahmen konnte auch hier die Decken erhalten und mit geringem Aufwand ertüchtig werden.
Die teilweise gut erhaltenen Kastenfenstern wurden behutsam restauriert, die Innentüren der Hauptflügel wurden denkmalgerecht aufgearbeitet. Die Türöffnungen in den Nebenbereichen wurden in den letzten Jahrzeiten häufig verändert, sodass keine bauzeitlichen Türen mehr vorhanden waren. Hier kamen Nachbauten zum Einsatz. Eine Besonderheit stellten die Betontürgewände dar. Bei neu herzustellenden Türöffnungen wurden diese nachgebaut.
Durch eine Modernisierung der Kastenfenster mittels Isolierverglasung und der Umsetzung von weiteren Dämmmaßnahmen, wie der Ertüchtigung der Außenwände mit Dämmputz, konnte eine wesentliche Verbesserung der Energieeffizienz erzielt werden, ohne die Bausubstanz aufzugeben oder das äußere Bild zu beeinträchtigen.
Das Gerichtsgebäude wurde zudem barrierefrei umgebaut.
- Année
- 2020
- Client
- Bau- und Liegenschaftsmanagement Sachsen-Anhalt (-BLSA-), Magdeburg
- Équipe
- Architekt: Ekkehard Voss, Assoziierter Partner: Jörg Rudloff, Projektleiter: Bettina Kempe-Gebert; Jörg Rudloff, Team: Susanne Bahr; Tobias Frisch; Hubert Jäger; Norbert Legmann; Jörg Rathmann; Stefan Schönefuss
- Statik
- R&P Ruffert Ingenieurgesellschaft mbH, Halle
- Haustechnik
- IB Albrecht, Schönebeck / Ortsteil Plötzky
- Landschaftsplaner
- Ihr Freiraumplaner, Magdeburg
- Brandschutzplanung
- Bischoff und Bischoff Ingenieur-Sachverständigenbüro für Bauwesen, Magdeburg
- Bausubstanzuntersuchung
- Wessling GmbH, Landsberg / Ortsteil Oppin
- Schallschutzgutachten
- Eco Akustik - Ingenieurbüro für Schallschutz, Barleben
- Rohbau
- Busse Bau GmbH, Magdeburg
- Holzbauarbeiten
- Pampelbau Dachtechnik Holzbau GmbH, Zwickau
- Naturstein
- Paul Schuster LB Bau- und Natursteinbetrieb GmbH, Magdeburg
- Brandschutz
- Armbrust GmbH, Mühlheim an der Ruhr
- Steinrestauration
- Steinrestaurierung Ellwart GmbH & Co. KG, Berlin
- Restaurierung
- NÜTHEN Restaurierungen GmbH + Co. KG, Erfurt
- Innenausbau
- Raumausstattung Mewes GmbH & Co. KG, Havelberg
- Metallbauarbeiten
- ER+TE Stahl- und Metallbau GmbH, Zerbst









