Büro- und Geschäftshaus Blissestraße 5

Blissestraße 5, 10713 Berlin, Allemagne
Photo © Klemens Renner

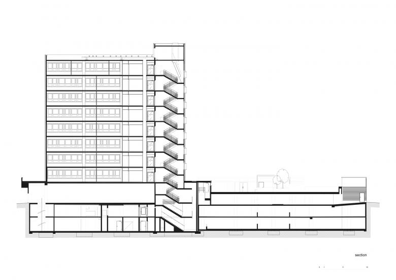
Das 1971 errichtete, ehemalige Finanzamt Berlin-Wilmersdorf erstreckt sich über rund drei Viertel des Blocks Blissestraße 5 / Berliner Straße 132 / Uhlandstraße 97 / Wilhelmsaue 26-27. Das Erdgeschoss ist nahezu flächendeckend überbaut und wird im Wesentlichen für Einzelhandels- und Parkzwecke genutzt. Die aufgehenden Geschosse sind in vier gestalterisch separierte, erschließungstechnisch jedoch in Verbindung stehende Baukörper gegliedert, die gegen die Blockkante unterschiedlich weit zurückgesetzt sind.

Das Projekt ist ein Beispiel für einen zeitgemäßen, nachhaltigen Umgang und eine bewusste Auseinandersetzung mit der die Stadt in diesem Viertel prägenden Bestandsarchitektur aus den 1970er Jahren.

Im Zuge der tiefgreifenden Sanierungsmaßnahmen des neungeschossigen Bürogebäudekomplexes wurden die Büroetagen von zunächst zwei der vier Hochbauteile umgebaut, mit einem druckbelüfteten Treppenhaus und einem Feuerwehraufzug ausgestattet, die Haustechnik flächendeckend modernisiert und die Tiefgarage durch den Einbau einer neuen, teils tiefergelegten Bodenplatte abgedichtet.

Die neue, hinterlüftete, vorgehängte Fassade besteht aus großformatigen, hochwetterfest pulverbeschichteten, weißen Aluminiumblechkassetten. Gegliedert werden diese durch weit auskragende, aus Aluminium-Strangpressprofilen individuell gefertigte Leibungskästen der Fenster. Die neuen, thermisch getrennten und hochwärmedämmenden Aluminium-Drehkippfenster bzw. Festelemente entsprechen optimal den aktuellen Anforderungen an Wärme- und Schallschutz. Die eingeschossige Fassade des Parkhauses zur Wilhelmsaue wurde mit vorgeblendeten Aluminium-Lamellen verkleidet und erhielt eine Farbgebung analog zur Hauptfassade. Auf dem Dach von Bauteil 3 wurde eine ca. 145 m² große Dachterrasse errichtet.

Der Komplex erhielt zudem eine angemessene, repräsentative Eingangssituation. Die Lobby und die Aufzugsvorräume vom 1. bis 8. Obergeschoss wurden mit Wandverkleidungen aus großformatigen, echtholzfurnierten Tafeln und Sockeln aus spiegelpolierten, schwarz titannitritbeschichteten Edelstahl-Blechprofilen versehen.

Anforderungen an eine barrierefreie Gebäudenutzung wurden bei der Sanierung berücksichtigt.

Photo © Klemens Renner
Photo © Klemens Renner
Photo © Klemens Renner
Photo © Klemens Renner
Photo © Klemens Renner
Photo © Klemens Renner
Photo © Klemens Renner
Photo © Klemens Renner
Photo © Klemens Renner
Photo © Klemens Renner
Photo © Klemens Renner
Schwarzplan
Dessin © TCHOBAN VOSS Architekten
Schnitt
Dessin © TCHOBAN VOSS Architekten
Année
2020
Client
Becker & Kries Unternehmensgruppe, Berlin
Équipe
Architekt Sergei Tchoban, Partner und Projektleiter Philipp Bauer, Alina Molina, Hanna Bulavana, Dirk Kollendt, Katharina Stranz, Evgenia Sulaberidze, René Hoch
Projektsteuerung
BAL Bauplanungs und Steuerungs GmbH, Berlin
Statik
Weiske & Partner GmbH, Berlin
Landschaftsplaner
KUULA Landschaftsarchitekten, Berlin
Interieur
Raumdeuter, Berlin
Fassade
GMS – Grebenauer Metallbau Schreiner GMBH, Grebenau
Rohbau
ARGE BS5; Bleck & Söhne, Berlin
Ausbau
Lindner SE, Arnstorf
Türen & Tore
Ohning + Co. GmbH, Dresden
Schlosser
LTM Nitschke & Sohn GmbH, Helbedündorf / Ortsteil Toba
Betonwerkstein
NSW Wernigerode, Wernigerode
Landschaftsbau
Dörries Galabau GmbH, Einbeck
Elektro
Ritter Starkstromtechnik Berlin GmbH & Co. KG, Berlin
Lüftung
En.plus GmbH, Niederlassung Berlin
Aufzüge
Lutz Aufzüge, Reinbek / Hamburg

Autres projets de TCHOBAN VOSS Architekten 

Rosenthaler Str. 43-45
Berlin, Allemagne
Ferrum 1
Sankt Petersburg, Russie
Königstadt-Quartier
Berlin, Allemagne
Landgericht Magdeburg
Magdeburg, Allemagne
Expoforum
Sankt Petersburg, Russie