coe48
Die Köpenicker Straße ist eine wichtige architekturhistorische Ader zwischen Berlin-Mitte und Kreuzberg: Hier ist das kontrastvolle, raue Berlin – von Industriebauten der Jahrhundertwende über die Sachlichkeit der Nachkriegsarchitektur – bis heute erlebbar. Hier trifft Mauerwerk auf Putz, Metall auf Beton.
An der Ecke Köpenicker Straße 48 und Wilhelmine-Gemberg-Weg direkt gegenüber dem Wirtschaftszentrum Mediaspree entstand das Projekt coe48. Die reliefstarke Fassade mit ihrem skulpturalen Spiel der Erker, grünen Terrassen und großen Fensteröffnungen bringt eine neue Facette in das historisch gebildete Ensemble von Gebäuden an dieser Ecke der Köpenicker Straße und führt das vielfältige architektonische Erbe fort. Das siebengeschossige Gebäude fügt sich mit Nonchalance in die lebendige und kreative Umgebung des Kiezes ein und schafft einen modernen Ort zum Wohnen oder Arbeiten mitten im Herzen der Stadt.
Konzept
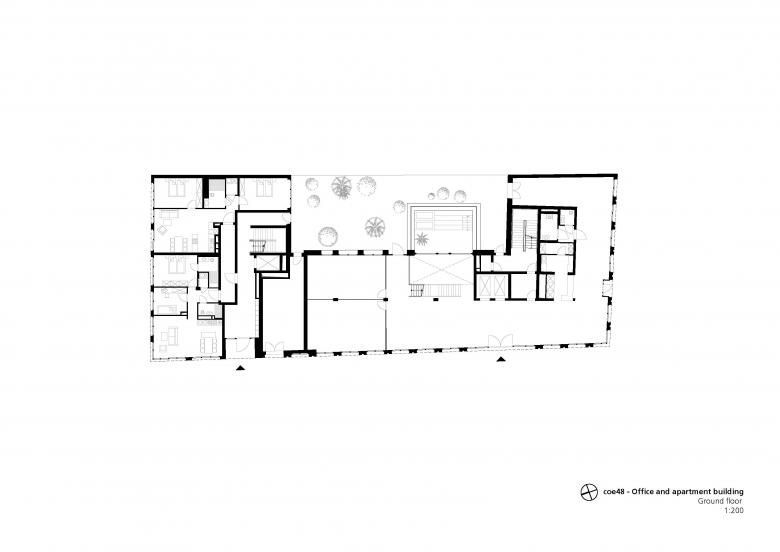
Der Bau vereint sowohl flexible Büro- als auch Wohnflächen, die jeweils über separate Eingänge und Erschließungskerne verfügen. Den modernen Eingangsbereich zum Wohngebäude mit seinen Sichtbetonflächen im Kontrast zur in grellem Pink gehaltenen gegenüberliegenden Wand mit den Briefkästen ziert eine Neon-Lichtinstallation der Berliner Künstlerin Anna Nezhnaya.
Die hinterlüftete Fassade im „Bürobereich“ besteht aus sandfarbenem Architekturbeton mit einer strukturierten Gliederung durch vertikale Stützen, die je nach Lichteinfall und Tageszeit für eine besondere Belebung der Fassade sorgen. Klar visuell davon getrennt präsentiert sich das hellere Apartmenthaus mit seinen kubisch-geometrischen Raster, glatten Alucobondfassaden- und großen Fensterflächen. Erker und Balkone in unterschiedlichen Ausführungen durchdringen im Wechselspiel den Fassadenrhythmus und sorgen für einen weiteren spannenden Effekt.
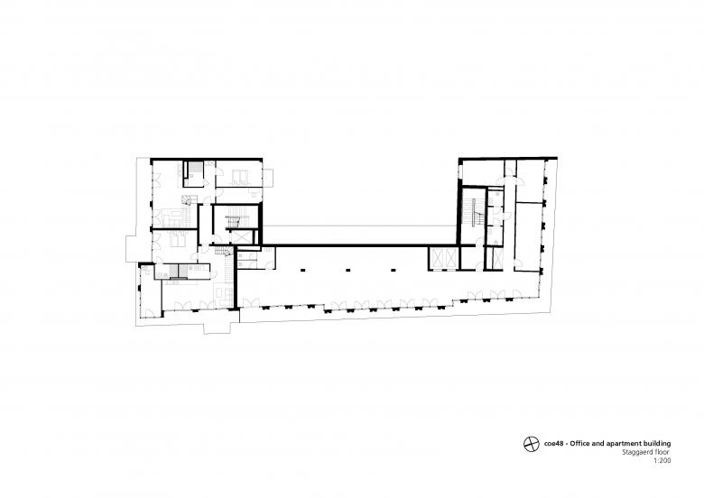
Das oberste Geschoss springt als Staffelgeschoss zurück und bietet Raum für Terrassenflächen. Alle Dächer des Gebäudes werden intensiv begrünt.
Wohnen oder Arbeiten
Die als Büro geplanten Flächen, die sich im südwestlichen Teil des Gebäudes befinden, bieten auf fünf Obergeschossen flexible Raumaufteilungen, aber auch verschiedene Nutzungsmöglichkeiten: Diese können bei Bedarf auch zu Apartments umgenutzt werden, um zusätzlichen Wohnraum im belebten Viertel zu schaffen. Mit einer Gesamtfläche von 3.000 m² und bis zu 3,80 m hohen Decken schaffen die Räume ein komfortables Wohn- oder Arbeitsumfeld. Die bodentiefen Fensterfronten sowie Erker und Terrassen in allen Stockwerken verstärken das offene Raumgefühl. Im Erdgeschoss befindet sich auf einer Fläche von 137 m² eine gastronomische Nutzungseinheit mit einem separaten Cafébereich, das zur Belebung des Quartiers beiträgt. Auch der Zugang zur Dachterrasse ist vom Bürobereich aus über das Treppenhaus möglich.
Die bereits bestehenden 19 Mietwohnungen, die im nordöstlichen Teil des Gebäudes untergebracht sind, verteilen sich auf sieben Vollgeschosse mit bis zu drei Wohnungen pro Etage. Jede Wohnung verfügt über großzügige Fensterflächen und Zugang zu privaten Terrassen. Der begrünte Innenhof schafft eine ruhige Atmosphäre inmitten des lebhaften urbanen Umfelds.
Nachhaltigkeit:
Eine DGNB sowie LEED Platin Zertifizierung sind in Prüfung.
- Année
- 2024
- Project Status
- Construit
- Client
- Trockland Koepenicker Str. 48 GmbH
- Équipe
- Sergei Tchoban, Axel Binder, Andrea Moritz, Carolin Trahorsch, Franziska Dorner, Manuela Peth, Lev Chestakov
- Landschaftsplanung
- Dipl. Ing. Stephan Haan | Freier Garten- und Landschaftsarchitekt, Berlin
- Statik
- Ingenieurbüro Rüdiger Jockwer GmbH, Berlin
- Haustechnik
- WINTER Gebäudetechnik, Engineering & Services Berlin GmbH, Berlin
- Fassade
- thomas newco GmbH (Beton), HSP Fassaden GmbH (Aluminium)
- Fenster
- Pötschke Fensterbau, Löbau
- Lichtkunst
- Anna Nezhnaya
- Fotograf
- Klemens Renner













