Wassererlebnispark und –ausstellung Gymnicher Mühle
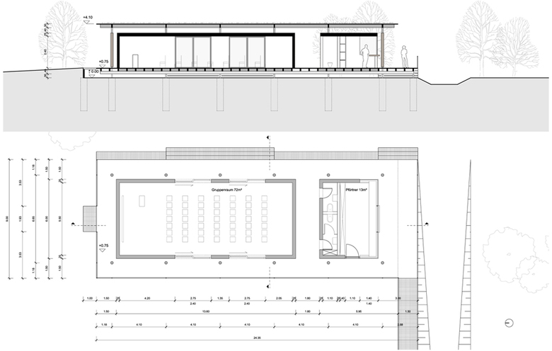
103 km ist die Erft lang von der Quelle bis zur Mündung in den Rhein. Auf ihrem Lauf durch Städte, Dörfer und Landschaften passiert sie ein interessantes Stück Deutschland. Themen wie die Quelle, Tagebau, mittelalterliche Burgen oder die Mündung in den Rhein bilden den Ausgangspunkt und Rahmen für den Wassererlebnispark an der Gymnicher Mühle. Dabei gilt es diese Themen in spannende und unterhaltsame Erlebnisbereiche zu „übersetzen“, andererseits aber auch den Ort an der Gymnicher Mühle und seinen besonderen Charakter zu erhalten. Die großzügigen Wiesenflächen, eingefasst mit einem Gehölzsaum und durchsetzt mit einzelnen sehr besonderen Bäumen wirkt wie ein schlafendes Kleinod. Deshalb entstand sehr früh das Konzept einzelne Erlebnisstationen an den Rand des Gehölzbestandes zu schieben und die großzügigen Wiesenflächen weitgehend frei zu halten. Verbunden werden diese Stationen über eine Wasserrinne, die durch verschiedene Bodenmaterialien als Barfußpfad genutzt werden kann. Die Erlebnisstationen sind Filterhaus/Quelle, Burg, Bodenschätze, Aussichtsturm, Teich, Mühle, Mündung, Wasserwerkstatt. Die Gebäude im Park dienen dazu, Möglichkeiten für pädagogisches Arbeiten mit den Gruppen zu ermöglichen und Sozial- bzw. Arbeitsräume für die Mitarbeiter bereit zu stellen. Sie sind sehr klar und reduziert gestaltet. Holz steht als Material im Vordergrund wodurch sich die Gebäude als eigenständiges aber zurückhaltendes Element in den Naturraum einfügen. Ein weiterer wichtiger Baustein des Nutzungskonzepts für das denkmalgeschützte Ensemble Gymnicher Mühle ist das Museum, das einen Großteil des Scheunengebäudes einnehmen soll. Der Raumeindruck des Scheunengebäudes mit seinem charakteristischen offenen Dachstuhl bleibt dabei erhalten. Grundidee ist es ein unaufgeregtes Nebeneinander von historischem Ensemble und moderner baulicher Ergänzung zu erreichen, ohne dass die Ablesbarkeit von Alt und Neu verloren geht.
- Année
- 2014







