Neubau Besucherzentrum JUST Schweiz AG, Walzenhausen

Dorf 62, 9428 Walzenhausen, Suisse
Photo © Till Forrer

Die fast 100-jährige Erfolgsgeschichte der JUST Schweiz AG zeugt von Innovationsfreude, Traditionsbewusstsein und den Anspruch an höchste Qualität. Das familiengeführte Unternehmen produziert natürliche Pflegeprodukte. Der Firmensitz befindet sich seit der Gründung in einem ehemaligen Stickerei-Areal im appenzellischen Walzenhausen.

Für die künftige Weiterentwicklung errichtet JUST in ihrem Konglomerat von Betriebsgebäuden ein repräsentatives Besucherzentrum, das einen Shop, einen Seminarraum und Büroräume beherbergt. Die Gebäude werden neu untereinander verbunden, um die betrieblichen Abläufe zu optimieren.

Das Haus A als Besucherzentrum und zentrale Anlaufstelle tritt als Visitenkarte der JUST Schweiz AG hervor. Als Schmuckstück im Ensemble steht es für Tradition, Nachhaltigkeit sowie Qualität und lädt aktiv zum Besuch ein. Es ist ein introvertiertes Gebäude, dass sich auf die Interaktion mit dem Besucher und die ausgestellten Produkte konzentriert. Nur im Erdgeschoss verfügt es über eine Schaufensterfront, die Einblick in die Verkaufsfläche gibt. Gegen aussen tritt das Gebäude mit seiner ornamentierten Fassade in den Fokus. Es erzählt die Geschichte und Werte des Unternehmens und weckt beim Besucher Emotionen.

Mit dem Besucherzentrum wurde ein Leuchtturmprojekt aus Holz realisiert, das die fast unbegrenzten Möglichkeiten des Baustoffes öffentlich aufzeigt. Der komplexe Grundriss über drei Stockwerke erforderte eine hochpräzise Vermessung und Planung. Die Bauherrschaft war äusserst bedacht auf eine ökologische Umsetzung der Holzarbeiten, die mehrheitlich aus Massivholz ohne Oberflächenbehandlung bestehen. Das Gebäude verwendet bewusst ornamentale Elemente, wie die künstlerische Fassade oder Giebeldreiecke, um die traditionsreiche, appenzellische Geschichte des Unternehmens und die Kunst des Handwerks zu würdigen.

Photo © Till Forrer
Photo © Till Forrer
Photo © Till Forrer
Photo © Till Forrer
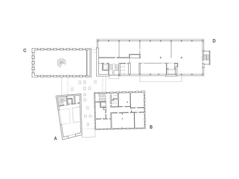
Erdgeschoss
Dessin © RLC
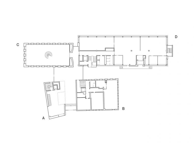
Obergeschoss
Dessin © RLC
Année
2020

Autres projets de RLC Architektur, Projektentwicklung 

Mieterausbau SWICA «Elefant» Lokstadt, Winterthur
Winterthur, Suisse
Neubau Mehrfamilienhaus «Wuhrstrasse», Goldach
Goldach, Suisse
Wohn- und Tagesstätte «Autismus Wyden» Brühlgut Stiftung, Winterthur im Standard Minergie-P®
Winterthur, Suisse
Dienstleistungszentrum THE CIRCLE
Zürich-Flughafen, Suisse
Geschäftshaus Westoffice
St. Gallen, Suisse