Hirschfeld BF III - Naturnah wohnen
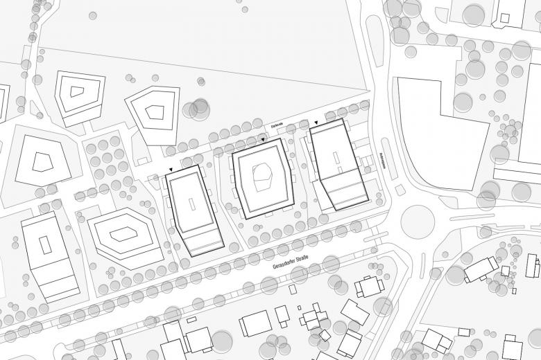
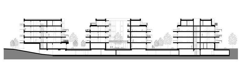
Der Masterplan - entwickelt von unseren Kolleg:innen „Shibukawa Eder Architects“ - bildet den übergeordneten Rahmen für das Gebiet Hirschfeld. Basierend auf der Flächenwidmung unterteilt sich das Grundstück an der Gerasdorfer Straße in vier Baufelder. Diese wiederum sind klar in zwei Gebiete mit unterschiedlichen Anforderungen zoniert - die lautere südliche Zone an der stark befahrenen Straße und die ruhigere nördliche Zone, angrenzend an das Waldgebiet entlang der Sowinetzgasse. Unser Baufeld findet sich an der Gerasdorferstraße und umfasst 2 Typologien, die im Masterplan entwickelt wurden – 2 Terrassenhäuser, die sich zur Gerasdorferstraße hin abtreppen, um auf die gegenüberliegende Bebauung zu reagieren und ein Punkthaus mit innenliegendem Atrium.
Die Baukörper werden über eine zentrale, autofreie Esplanade erschlossen und treppen sich zur Gerasdorfer Straße ab, wodurch sich großzügige Terrassen bilden, welche sowohl größeren und kleineren, smart und nicht-smart Wohnungen zugeordnet sind. Im Norden grenzt das Baufeld an den bauplatzübergreifenden Jugendspielplatz. Westlich schließt das Baufeld mit Bauteil 3 und darin befindlichem Gemeinschaftsraum direkt an den zentralen Kirschhain des Areals und leistet so einen wesentlichen Beitrag zur Belebung des Areals.
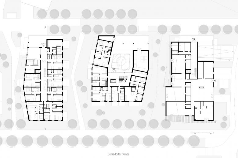
Wohnungen, Gemeinschaftsflächen und zugeordnete Freiflächen gewährleisten eine belebte Erdgeschoßzone. In den Terrassenhäusern (Bauteil 1 und Bauteil 3) führen kaskadierende Treppen durch das großzügig belichtete Treppenhaus nach oben. Lufträume ermöglichen Blickbezüge und visuelle Verbindungen. Das Atriumhaus (Bauteil 2) wird über das offene, begrünte Atrium erschlossen. Der Baukörper ermöglicht darüber hinaus durchgesteckte und querlüftbare Wohnungen. Die Begrünung im Erdgeschoß sorgt dabei für ein angenehmes Mikroklima.
In beiden Bautypen wurde die Erschließung hinsichtlich der Vermeidung reiner Nord-Wohnungen optimiert. Das Erdgeschoss bildet die Drehscheibe des sozialen Zusammenlebens und verwebt Architektur und Außenraum. Neben den Wohnungen und deren notwendigen Wohnfolgenutzungen (Müllraum, Kinderwagen- und Fahrradraum) werden im Erdgeschoss ein Gemeinschaftsraum und eine Fahrradwerkstatt angeboten, welche sich zur Esplanade hin orientieren. Darüber hinaus ist in Bauteil 1 ein Kindergarten untergebracht, welcher nicht nur einen Mehrwert für die Bewohner:innen, sondern auch für das gesamte Areal und dessen Nachbar:innen darstellt. Das begrünte Atrium in Bauteil 2 ladet darüber hinaus als Begegnungszone zum Verweilen und Kennenlernen ein. Die erweiterte Laubengangfläche im 1.OG bietet zusätzlichen Raum zur Interaktion und Kommunikation der Bewohner:innen. Zusätzlich holt der Gemeinschaftshof in der Mitte des Atriums nicht nur den angrenzenden Grünraum in die halböffentliche Zone, sondern stellt mit seiner Bepflanzung einen wichtigen identitätsstiftenden Mehrwert für die Bewohner:innen dar.
- Année
- 2024
- Client
- ÖSW – Österreichisches Siedlungswerk
- Équipe
- Richard Baltl, Martin Geyer, Ðurđica Srdanović Glavina, Kerstin Loder, Davor Podbregar, Manfred Thallner
- Tragwerksplanung
- petz zt-gmbh
- Brandschutzplanung
- Röhrer Bauphysik
- Landschaftsarchitektur
- Dipl. Ing. Karin Standler






