Health and Wellness Center – Suffolk County Community College

Riverhead, États-Unis
Photo © James Ewing

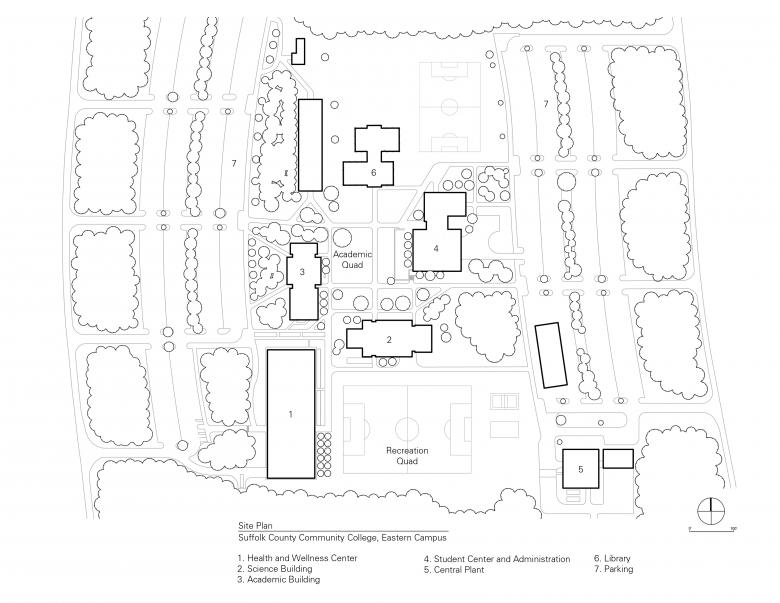
The Health and Wellness Center is a 45,000-square-foot academic and recreation facility that contains teaching spaces for the Department of Nursing and Physical Education, as well as recreation spaces for students, faculty, and the Eastern Long Island community. Inspired by the East End Long Island Pine Barrens where this campus is set, the Center for Health and Wellness’s custom-fabricated precast concrete panels and glass façade are modeled after abstracted representations of pine bark to highlight the importance of the natural environment in establishing the unique architectural character of Suffolk Community College and to create a building that evokes the neighboring stand of pine trees along the southern edge of campus. The Health and Wellness Center extends the existing campus plan by creating a second campus quadrangle—the new recreation quad—that will house a future multi-purpose field. The center is organized around a sun-drenched double-height lobby and soaring rock-climbing wall that leads to a fitness room and locker rooms and is flanked by a gymnasium and a natatorium for recreation and NCAA competitions.

Photo © James Ewing
Photo © James Ewing
Photo © James Ewing
Photo © James Ewing
Photo © James Ewing
Photo © James Ewing
Photo © James Ewing
Photo © James Ewing
Longitudinal Section
Dessin © ikon.5 architects
Photo © James Ewing
Dessin © James Ewing
Transverse Section
Dessin © ikon.5 architects
Photo © James Ewing
Année
2019
Project Status
Construit
Client
Suffolk County Community College
Architect of Record
Wiedersum Associates Architects
Severud Associates
Structural Engineer
Civil Engineer
Sidney B. Bowne & Son
MEP/F Engineer
Lizardos
Landscape Architect
RDA Landscape Architects
Natatorium Specialist
Councilman-Hunsaker
Contractor
Sea Crest Construction

Autres projets de ikon.5 architects 

North Campus Residential Expansion - Phase 1 – Cornell University
Ithaca, États-Unis
Tiedemann College of Business – University of South Florida
St. Petersburg, États-Unis
Louis Vuitton | New York Office and Showroom
New York, NY, États-Unis
Hockessin Public Library – New Castle County
Hockessin, DE, États-Unis
Jane E. Heminger Hall | College of Nursing | The Ohio State University
Columbus, États-Unis